Maison neuve à
Le Bocasse (76690) Référence : RC2417001_4

Prix du projet : Maison avec Terrain

prix 218 273 €

  • 4 pièces
  • 2 chambres
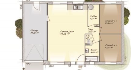
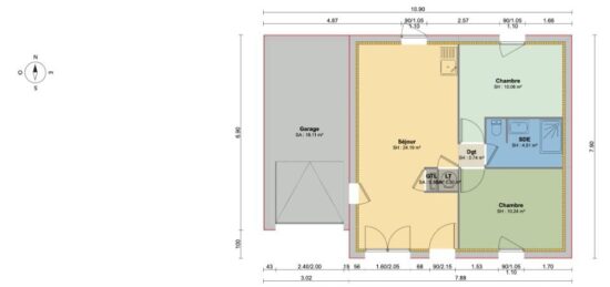
  • Surface maison 70 m2

Le Bocasse : maison de 4 pièces (70 m²) à construire.
IDÉALEMENT SITUÉE - MAISON 4 PIÈCES NEUVE
En vente : à 36 km de la Manche et à quelques kilomètres de Rouen, votre agence Maisons Balency Boos est heureuse de vous présenter cette maison de 4 pièces de plain-pied de 70 m² et de 707 m² de terrain idéalement située dans Le Bocasse (76690).
Conçue de plain-pied, elle inclut deux chambres, une cuisine et une salle de bains. Cette maison est neuve.
La maison se situe dans un secteur convoité. Il y a l'École Primaire Fertel à moins de 10 minutes à pied. Niveau transports en commun, on trouve les gares Clères, Montville et Saint-Victor-l'Abbaye à moins de 10 minutes en voiture. Les autoroutes A151 et A29 et la nationale N27 sont accessibles à moins de 6 km.
Elle est à vendre pour la somme de 218 273 €.
Contactez notre constructeur (Célia RENIER : 07-62-90-87-77) pour tout renseignement sur la maison, sur les démarches à suivre ou sur les modalités de vente.

Annonce proposée par un Agent Commercial Partenaire.

Mentions légales

Terrain proposé par un partenaire foncier selon disponibilités et autorisation de publicité au prix de 58 000 €. Hors droit d'enregistrement et frais de notaire. Terrain + Maison proposés au prix de 218 273 € (Hors branchements et raccordements, papiers peints, peintures, revêtement de sol dans les chambres. Tarif modifiable sans préavis). Etiquette énergie : A. Différents modèles disponibles pour ce terrain. Assurances et garanties du constructeur (RC professionnelle, décennale, dommage ouvrage, garantie de remboursement de l'acompte, livraison à prix et délai convenu) : https://www.maisons-balency.fr/informations-legales/. HEXAOM Services est enregistré auprès de l'ORIAS en tant que Courtier en financement, Niveau 1, sous le numéro 14001345.

Contactez l'agence de Boos

02 35 80 66 66

    * Champs obligatoires

    Vos informations sont traitées par HEXAOM et transmises à un conseiller commercial qui vous contactera afin de répondre à votre demande. Les plans et images présentés sur notre site sont la propriété d’HEXAOM et ne peuvent pas être reproduits sans son accord. Pour retrouver notre politique de protection des données personnelles et exercer vos droits conformément à la « loi informatique et liberté » cliquez-ici.