Maison neuve à
Le Bois-Robert (76590) Référence : RC2273053_4

Prix du projet : Maison avec Terrain

prix 215 790 €

  • 6 pièces
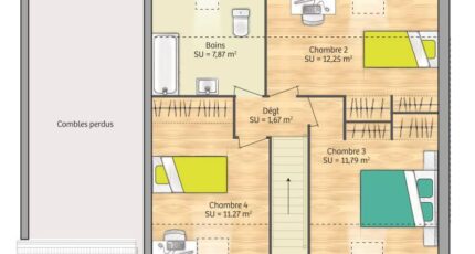
  • 4 chambres
  • Surface maison 89 m2

A construire : maison T6 (89 m²) au Bois-Robert
IDÉALEMENT SITUÉE - MAISON 6 PIÈCES NEUVE
En vente à 13 km de la Manche et à deux pas de Dieppe, Maisons Balency Boos vous propose cette maison de 6 pièces de 89 m² idéalement située dans Le Bois-Robert (76590). Elle dispose de quatre chambres, d'une cuisine et d'une salle de bains.
Le terrain de cette maison s'étend sur 1 072 m².
Cette maison comporte 2 niveaux. Elle est neuve.
La maison se trouve dans un quartier convoité. Niveau transports, il y a deux gares (Longueville-sur-Scie et Saint-Aubin-sur-Scie) à moins de 10 minutes en voiture. La nationale N27 est accessible à 6 km. On trouve une bibliothèque à quelques minutes de la maison.
Elle est à vendre pour la somme de 215 790 €.
Contactez Célia RENIER (07-62-90-87-77) pour toute information sur la maison, sur les démarches à suivre ou sur les modalités de vente.

Annonce proposée par un Agent Commercial Partenaire.

Mentions légales

Terrain proposé par un partenaire foncier selon disponibilités et autorisation de publicité au prix de 64 500 €. Hors droit d'enregistrement et frais de notaire. Maison proposée, avec un contrat de construction de maison individuelle, dans le cadre de la loi du 19/12/1990, au prix de 151 290 € (Hors branchements et raccordements, papiers peints, peintures, revêtement de sol dans les chambres, qui sont chiffrés dans les travaux qui restent à charge du client. Tarif modifiable sans préavis). Étiquette énergie : A. Différents modèles disponibles pour ce terrain. Assurances et garanties du constructeur comprises (RC professionnelle, décennale, dommage ouvrage).

Contactez l'agence de Boos

02 35 80 66 66

    * Champs obligatoires

    Vos informations sont traitées par HEXAOM et transmises à un conseiller commercial qui vous contactera afin de répondre à votre demande. Les plans et images présentés sur notre site sont la propriété d’HEXAOM et ne peuvent pas être reproduits sans son accord. Pour retrouver notre politique de protection des données personnelles et exercer vos droits conformément à la « loi informatique et liberté » cliquez-ici.