Maison neuve à
Le Bois-Robert (76590) Référence : SEMA9016_11

Prix du projet : Maison avec Terrain

prix 395 000 €

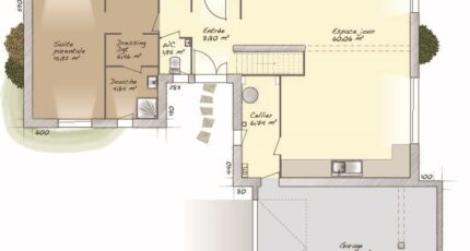
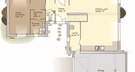
  • 7 pièces
  • 5 chambres
  • Surface maison 170 m2

Le Bois-Robert : maison de 7 pièces (170 m²) à vendre
MAISON 7 PIÈCES NEUVE - PROCHE DE DIEPPE
À vendre à 13 km de la Manche et à 10 km de Dieppe, au Bois-Robert (76590), nous vous proposons cette maison de 7 pièces de plain-pied de 170 m² et de 1 000 m² de terrain. Son intérieur propose cinq chambres, une cuisine et trois salles de bains.
Cette maison est neuve.
Niveau transports en commun, il y a deux gares (Longueville-sur-Scie et Saint-Aubin-sur-Scie) à moins de 10 minutes en voiture. On trouve un accès à la nationale N27 à 6 km. On trouve une bibliothèque à quelques minutes de la maison.
Elle est à vendre pour la somme de 395 000 €.
Contactez Sébastien MASSON (06-23-38-14-17) pour plus d'informations sur la maison. Maisons Balency Boos vous accompagne à toutes les étapes de votre projet et dans tous vos projets immobiliers.

Annonce proposée par un Agent Commercial Partenaire.

Mentions légales

Terrain proposé par un partenaire foncier selon disponibilités et autorisation de publicité au prix de 65 000 €. Hors droit d'enregistrement et frais de notaire. Terrain + Maison proposés au prix de 395 000 € (Hors branchements et raccordements, papiers peints, peintures, revêtement de sol dans les chambres. Tarif modifiable sans préavis). Etiquette énergie : A. Différents modèles disponibles pour ce terrain. Assurances et garanties du constructeur (RC professionnelle, décennale, dommage ouvrage, garantie de remboursement de l'acompte, livraison à prix et délai convenu) : https://www.maisons-balency.fr/informations-legales/. HEXAOM Services est enregistré auprès de l'ORIAS en tant que Courtier en financement, Niveau 1, sous le numéro 14001345.

Contactez l'agence de Boos

02 35 80 66 66

    * Champs obligatoires

    Vos informations sont traitées par HEXAOM et transmises à un conseiller commercial qui vous contactera afin de répondre à votre demande. Les plans et images présentés sur notre site sont la propriété d’HEXAOM et ne peuvent pas être reproduits sans son accord. Pour retrouver notre politique de protection des données personnelles et exercer vos droits conformément à la « loi informatique et liberté » cliquez-ici.