Maison neuve à
Le Bois-Robert (76590) Référence : SEMA9016_3

Prix du projet : Maison avec Terrain

prix 215 000 €

  • 5 pièces
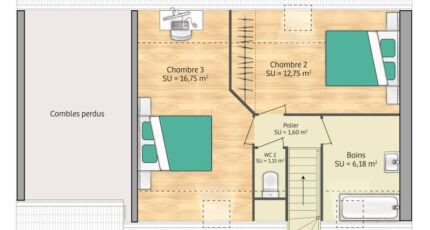
  • 3 chambres
  • Surface maison 76 m2

VENTE : maison T5 (76 m²) au Bois-Robert
PROCHE DE DIEPPE - MAISON 5 PIÈCES NEUVE
En vente : localisée à 13 km de la Manche et à deux pas de Dieppe, nous vous proposons cette maison de 5 pièces de 76 m² au Bois-Robert (76590). Elle offre trois chambres, une cuisine et une salle de bains.
Le terrain du bien s'étend sur 1 000 m².
Cette maison comporte 2 niveaux. Elle est neuve.
Niveau transports en commun, on trouve deux gares (Longueville-sur-Scie et Saint-Aubin-sur-Scie) à moins de 10 minutes en voiture. On trouve un accès à la nationale N27 à 6 km. Il y a une bibliothèque à quelques minutes à peine.
Elle est à vendre pour la somme de 215 000 €.
Prenez contact avec Sébastien MASSON (06-23-38-14-17) pour tout renseignement sur la maison, sur les démarches à suivre ou sur les modalités de vente. Maisons Balency Boos est là pour vous accompagner dans tous vos projets immobiliers.

Annonce proposée par un Agent Commercial Partenaire.

Mentions légales

Terrain proposé par un partenaire foncier selon disponibilités et autorisation de publicité au prix de 65 000 €. Hors droit d'enregistrement et frais de notaire. Terrain + Maison proposés au prix de 150 000 € (Hors branchements et raccordements, papiers peints, peintures, revêtement de sol dans les chambres. Tarif modifiable sans préavis). Etiquette énergie : A. Différents modèles disponibles pour ce terrain. Assurances et garanties du constructeur (RC professionnelle, décennale, dommage ouvrage, garantie de remboursement de l'acompte, livraison à prix et délai convenu) : https://www.maisons-balency.fr/informations-legales/. HEXAOM Services est enregistré auprès de l'ORIAS en tant que Courtier en financement, Niveau 1, sous le numéro 14001345.

Contactez l'agence de Boos

02 35 80 66 66

    * Champs obligatoires

    Vos informations sont traitées par HEXAOM et transmises à un conseiller commercial qui vous contactera afin de répondre à votre demande. Les plans et images présentés sur notre site sont la propriété d’HEXAOM et ne peuvent pas être reproduits sans son accord. Pour retrouver notre politique de protection des données personnelles et exercer vos droits conformément à la « loi informatique et liberté » cliquez-ici.