Maison neuve à
Le Bois-Robert (76590) Référence : SEMA9016_7

Prix du projet : Maison avec Terrain

prix 259 000 €

  • 9 pièces
  • 5 chambres
  • Surface maison 124 m2

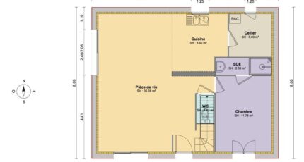
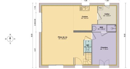
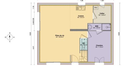
VENTE d'une maison de 9 pièces (124 m²) au Bois-Robert
PROCHE DE DIEPPE - MAISON 9 PIÈCES NEUVE
À vendre : à 13 km de la Manche et à 10 km de Dieppe, Maisons Balency Boos vous propose cette maison de 9 pièces de 124 m² et de 1 000 m² de terrain au Bois-Robert (76590).
Cette maison compte 2 niveaux. Son intérieur est composé de cinq chambres, d'une cuisine et de trois salles de bains. Cette maison est neuve.
Niveau transports en commun, il y a les gares Longueville-sur-Scie et Saint-Aubin-sur-Scie à moins de 10 minutes en voiture. Il y a un accès à la nationale N27 à 6 km. On trouve une bibliothèque à proximité du logement.
Elle est proposée à l'achat pour 259 000 €.
Prenez contact avec notre agence (Sébastien MASSON : 06-23-38-14-17) pour plus d'informations sur la maison. Faites de vos projets immobiliers une réalité avec Maisons Balency Boos.

Annonce proposée par un Agent Commercial Partenaire.

Mentions légales

Terrain proposé par un partenaire foncier selon disponibilités et autorisation de publicité au prix de 65 000 €. Hors droit d'enregistrement et frais de notaire. Terrain + Maison proposés au prix de 194 000 € (Hors branchements et raccordements, papiers peints, peintures, revêtement de sol dans les chambres. Tarif modifiable sans préavis). Etiquette énergie : A. Différents modèles disponibles pour ce terrain. Assurances et garanties du constructeur (RC professionnelle, décennale, dommage ouvrage, garantie de remboursement de l'acompte, livraison à prix et délai convenu) : https://www.maisons-balency.fr/informations-legales/. HEXAOM Services est enregistré auprès de l'ORIAS en tant que Courtier en financement, Niveau 1, sous le numéro 14001345.

Contactez l'agence de Boos

02 35 80 66 66

    * Champs obligatoires

    Vos informations sont traitées par HEXAOM et transmises à un conseiller commercial qui vous contactera afin de répondre à votre demande. Les plans et images présentés sur notre site sont la propriété d’HEXAOM et ne peuvent pas être reproduits sans son accord. Pour retrouver notre politique de protection des données personnelles et exercer vos droits conformément à la « loi informatique et liberté » cliquez-ici.