Maison neuve à
Le Boulay-Morin (27930) Référence : FG2416829_1

Prix du projet : Maison avec Terrain

prix 391 806 €

  • 7 pièces
  • 4 chambres
  • Surface maison 160 m2

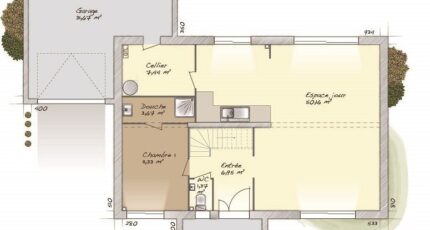
VENTE : maison de 7 pièces (160 m²) au Boulay-Morin
EMPLACEMENT PRIVILÉGIÉ - 
À vendre : située à quelques kilomètres d'Évreux, nous sommes heureux de vous présenter, bénéficiant d'un emplacement d'exception dans Le Boulay-Morin (27930), cette maison de 7 pièces de 160 m².
C'est une maison de 2 niveaux. Son intérieur offre quatre chambres dont une suite parentale, une cuisine ouverte sur l'espace de vie, d'un cellier donnant sur un double garage et deux salles de bains. La maison est neuve.
Le terrain de la propriété est de 689 m².
Cette maison est située dans un secteur convoité. Des écoles maternelles et élémentaires y sont implantées.
Elle est proposée à l'achat pour 391 806 €.
Contactez notre agence (Fanny GATINAULT : 06-34-03-24-37) pour tout renseignement sur la propriété ou sur les démarches à suivre. Donnez vie à vos projets immobiliers avec Maisons Balency Louviers.

Annonce proposée par un Agent Commercial Partenaire.

Mentions légales

Terrain proposé par un partenaire foncier selon disponibilités et autorisation de publicité au prix de 69 000 €. Hors droit d'enregistrement et frais de notaire. Terrain + Maison proposés au prix de 391 806 € (Hors branchements et raccordements, papiers peints, peintures, revêtement de sol dans les chambres. Tarif modifiable sans préavis). Etiquette énergie : A. Différents modèles disponibles pour ce terrain. Assurances et garanties du constructeur (RC professionnelle, décennale, dommage ouvrage, garantie de remboursement de l'acompte, livraison à prix et délai convenu) : https://www.maisons-balency.fr/informations-legales/. HEXAOM Services est enregistré auprès de l'ORIAS en tant que Courtier en financement, Niveau 1, sous le numéro 14001345.

Contactez l'agence de Louviers

02 32 51 43 53

    * Champs obligatoires

    Vos informations sont traitées par HEXAOM et transmises à un conseiller commercial qui vous contactera afin de répondre à votre demande. Les plans et images présentés sur notre site sont la propriété d’HEXAOM et ne peuvent pas être reproduits sans son accord. Pour retrouver notre politique de protection des données personnelles et exercer vos droits conformément à la « loi informatique et liberté » cliquez-ici.