Maison neuve à
Le Crès
(34920) Référence :
CJ2331589_2
Prix du projet : Maison avec Terrain
prix 780 000 €
- 7 pièces
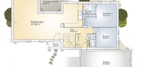
- 5 chambres
- Surface maison 145 m2
VENTE : maison de 7 pièces (145 m²) au Crès
EMPLACEMENT PRIVILÉGIÉ - MAISON 7 PIÈCES NEUVE
À vendre : à 13 km de la mer Méditerranée et à quelques kilomètres de Montpellier, notre agence Maisons Balency Castries est heureuse de vous proposer, bénéficiant d'un emplacement privilégié dans Le Crès (34920), cette maison de 7 pièces de 145 m². Son intérieur comporte cinq chambres, une cuisine et deux salles de bains.
Le terrain du bien est de 750 m².
Il s'agit d'une maison de 2 niveaux. Elle est neuve.
La maison est située dans un secteur convoité. On trouve cinq établissements scolaires à moins de 10 minutes à pied, tout comme une structure d'accueil pour les tout-petits. Niveau transports, il y a quatre gares à moins de 10 minutes en voiture. L'autoroute A709 et les nationales N113 et N109 sont accessibles à moins de 10 km. On trouve une bibliothèque, deux boulangeries et un commerce à proximité.
Son prix de vente est de 780 000 €.
Contactez Cédric (06-30-92-83-25) pour plus d'informations sur la maison, sur les démarches à suivre et sur les modalités de vente.
Mentions légales
Terrain proposé par un partenaire foncier selon disponibilités et autorisation de publicité au prix de 410 000 €. Hors droit d'enregistrement et frais de notaire. Terrain + Maison proposés au prix de 780 000 € (Hors branchements et raccordements, papiers peints, peintures, revêtement de sol dans les chambres. Tarif modifiable sans préavis). Etiquette énergie : A. Différents modèles disponibles pour ce terrain. Assurances et garanties du constructeur (RC professionnelle, décennale, dommage ouvrage, garantie de remboursement de l'acompte, livraison à prix et délai convenu) : https://www.maisons-balency.fr/informations-legales/. HEXAOM Services est enregistré auprès de l'ORIAS en tant que Courtier en financement, Niveau 1, sous le numéro 14001345.Agence Maisons Balency de Castries (34160)
- Téléphone :
- 04 99 62 92 10
- Adressse :
- 138, avenue de la Royale
34160 Castries, France
