Maison neuve à
Le Manoir (27460) Référence : MJ2373493_1

Prix du projet : Maison avec Terrain

prix 249 000 €

  • 5 pièces
  • 3 chambres
  • Surface maison 90 m2

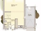
VENTE : maison de 5 pièces (90 m²) au Manoir
QUARTIER RECHERCHÉ - MAISON 5 PIÈCES NEUVE
À vendre : localisée à 15 km de Rouen, notre agence Maisons Balency Boos est heureuse de vous présenter cette maison de 5 pièces de 90 m² et de 426 m² de terrain dans un secteur attractif du Manoir (27460).
C'est une maison de 2 niveaux. Son intérieur est composé de trois chambres, d'une cuisine et d'une salle de bains. Cette maison est neuve.
Ce bien se situe dans un quartier convoité. L'École Maternelle Yannick Bayart et l'École Élémentaire Albert Becquart se trouvent à moins de 10 minutes à pied. Côté transports, il y a six gares à moins de 10 minutes en voiture. Les autoroutes A13 et A154 sont accessibles à moins de 8 km. On trouve une boulangerie, une boucherie-charcuterie et une épicerie à proximité du bien.
Il est proposé à l'achat pour 249 000 €.
N'hésitez pas à prendre contact avec Michael JOURDON (tél : 06.43.05.84.44) pour obtenir de plus amples informations sur la maison. Faites de vos projets immobiliers une réalité avec Maisons Balency Boos.

Annonce proposée par un Agent Commercial Partenaire.

Mentions légales

Terrain proposé par un partenaire foncier selon disponibilités et autorisation de publicité au prix de 73 000 €. Hors droit d'enregistrement et frais de notaire. Terrain + Maison proposés au prix de 176 000 € (Hors branchements et raccordements, papiers peints, peintures, revêtement de sol dans les chambres. Tarif modifiable sans préavis). Etiquette énergie : A. Différents modèles disponibles pour ce terrain. Assurances et garanties du constructeur (RC professionnelle, décennale, dommage ouvrage, garantie de remboursement de l'acompte, livraison à prix et délai convenu) : https://www.maisons-balency.fr/informations-legales/. HEXAOM Services est enregistré auprès de l'ORIAS en tant que Courtier en financement, Niveau 1, sous le numéro 14001345.

Contactez l'agence de Boos

02 35 80 66 66

    * Champs obligatoires

    Vos informations sont traitées par HEXAOM et transmises à un conseiller commercial qui vous contactera afin de répondre à votre demande. Les plans et images présentés sur notre site sont la propriété d’HEXAOM et ne peuvent pas être reproduits sans son accord. Pour retrouver notre politique de protection des données personnelles et exercer vos droits conformément à la « loi informatique et liberté » cliquez-ici.