Maison neuve à
Le Manoir (27460) Référence : KG2408553_4

Prix du projet : Maison avec Terrain

prix 160 000 €

  • 4 pièces
  • 2 chambres
  • Surface maison 50 m2

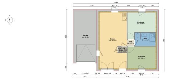
Le Manoir : maison F4 (50 m²) à vendre
MAISON 4 PIÈCES NEUVE - PROCHE DE ROUEN
À vendre : localisée à quelques kilomètres de Rouen, nous vous présentons cette maison de 4 pièces de plain-pied de 50 m² et de 660 m² de terrain au Manoir (27460).
Son intérieur offre deux chambres, une cuisine et une salle de bains. La maison est neuve.
Il y a l'École Maternelle Yannick Bayart et l'École Élémentaire Albert Becquart à moins de 10 minutes à pied. Niveau transports, on trouve six gares à moins de 10 minutes en voiture. Les autoroutes A13 et A154 sont accessibles à moins de 8 km. Il y a une boulangerie, une boucherie-charcuterie et une épicerie dans les environs.
Elle est à vendre pour la somme de 160 000 €.
N'hésitez pas à prendre contact avec Karen GOHIER (tél : 06 71 52 61 13) pour plus d'informations sur la maison. Faites de vos projets immobiliers une réalité avec Maisons Balency Louviers.

Annonce proposée par un Agent Commercial Partenaire.

Mentions légales

Terrain proposé par un partenaire foncier selon disponibilités et autorisation de publicité au prix de 58 000 €. Hors droit d'enregistrement et frais de notaire. Terrain + Maison proposés au prix de 160 000 € (Hors branchements et raccordements, papiers peints, peintures, revêtement de sol dans les chambres. Tarif modifiable sans préavis). Etiquette énergie : A. Différents modèles disponibles pour ce terrain. Assurances et garanties du constructeur (RC professionnelle, décennale, dommage ouvrage, garantie de remboursement de l'acompte, livraison à prix et délai convenu) : https://www.maisons-balency.fr/informations-legales/. HEXAOM Services est enregistré auprès de l'ORIAS en tant que Courtier en financement, Niveau 1, sous le numéro 14001345.

Contactez l'agence de Louviers

02 32 51 43 53

    * Champs obligatoires

    Vos informations sont traitées par HEXAOM et transmises à un conseiller commercial qui vous contactera afin de répondre à votre demande. Les plans et images présentés sur notre site sont la propriété d’HEXAOM et ne peuvent pas être reproduits sans son accord. Pour retrouver notre politique de protection des données personnelles et exercer vos droits conformément à la « loi informatique et liberté » cliquez-ici.