Maison neuve à
Le Manoir (27460) Référence : KG2408579_4

Prix du projet : Maison avec Terrain

prix 176 000 €

  • 4 pièces
  • 2 chambres
  • Surface maison 50 m2

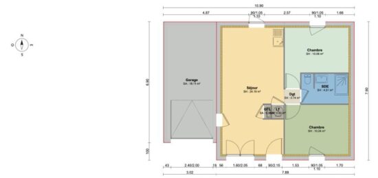
VENTE d'une maison T4 (50 m²) au Manoir
MAISON 4 PIÈCES NEUVE - PROCHE DE ROUEN
À vendre à 15 km de Rouen, au Manoir (27460), laissez vous charmer par cette maison de 4 pièces de plain-pied de 50 m² et de 820 m² de terrain. Conçue de plain-pied, elle comporte deux chambres, une cuisine et une salle de bains.
La maison est neuve.
L'École Maternelle Yannick Bayart et l'École Élémentaire Albert Becquart sont implantées à moins de 10 minutes à pied. Niveau transports en commun, il y a six gares à moins de 10 minutes en voiture. Les autoroutes A13 et A154 sont accessibles à moins de 8 km. On trouve une boulangerie, une épicerie et une boucherie-charcuterie dans les environs.
Elle est proposée à l'achat pour 176 000 €.
Contactez notre agence (Karen GOHIER : 06 71 52 61 13) pour toute question sur cette maison. Maisons Balency Louviers est là pour vous accompagner dans tous vos projets immobiliers.

Annonce proposée par un Agent Commercial Partenaire.

Mentions légales

Terrain proposé par un partenaire foncier selon disponibilités et autorisation de publicité au prix de 75 000 €. Hors droit d'enregistrement et frais de notaire. Terrain + Maison proposés au prix de 176 000 € (Hors branchements et raccordements, papiers peints, peintures, revêtement de sol dans les chambres. Tarif modifiable sans préavis). Etiquette énergie : A. Différents modèles disponibles pour ce terrain. Assurances et garanties du constructeur (RC professionnelle, décennale, dommage ouvrage, garantie de remboursement de l'acompte, livraison à prix et délai convenu) : https://www.maisons-balency.fr/informations-legales/. HEXAOM Services est enregistré auprès de l'ORIAS en tant que Courtier en financement, Niveau 1, sous le numéro 14001345.

Contactez l'agence de Louviers

02 32 51 43 53

    * Champs obligatoires

    Vos informations sont traitées par HEXAOM et transmises à un conseiller commercial qui vous contactera afin de répondre à votre demande. Les plans et images présentés sur notre site sont la propriété d’HEXAOM et ne peuvent pas être reproduits sans son accord. Pour retrouver notre politique de protection des données personnelles et exercer vos droits conformément à la « loi informatique et liberté » cliquez-ici.