Maison neuve à
Le Mée-sur-Seine
(77350) Référence :
PM2319251_1
Prix du projet : Maison avec Terrain
prix 313 000 €
- 5 pièces
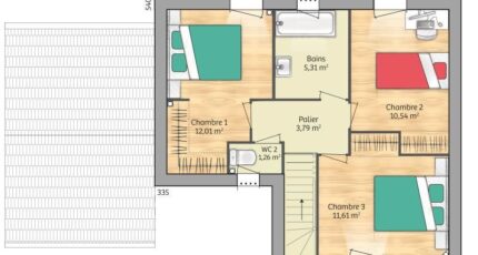
- 3 chambres
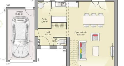
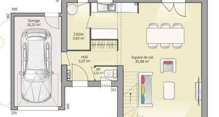
- Surface maison 90 m2
Votre Maison Neuve sur un terrain idéal au Mée-sur-Seine (77350) - à partir de 313 000 €
Devenez propriétaire d'une belle maison contemporaine de 90 m² à bâtir sur un agréable terrain viabilisé de 577 m², situé dans un quartier résidentiel calme et recherché du Mée-sur-Seine. À seulement quelques minutes des commodités telles que le centre commercial Boissenart, les écoles et le parc Debreuil, ce projet bénéficie d'un cadre de vie pratique et verdoyant. La gare du Mée-sur-Seine (ligne R) permet de rejoindre Paris-Gare de Lyon en environ 45 minutes, tandis que Melun se trouve à moins de 10 minutes, offrant tous les services d'une grande ville.
Avec Maisons Balency, du Groupe Hexaôm, premier constructeur de maisons individuelles en France, concevez une maison à votre image : sur-mesure ou inspirée de nos modèles catalogues, selon vos envies et votre budget. Toutes nos réalisations respectent la norme RE2020, garantissant confort, performance énergétique et un excellent classement DPE A ou B.
Maisons BALENCY - Agence d'Ormoy
23 chemin de Tournenfils - 91540 ORMOY
📞 09 67 70 15 81
Annonce proposée par un Agent Commercial Partenaire.
Mentions légales
Terrain proposé par un partenaire foncier selon disponibilités et autorisation de publicité au prix de 170 000 €. Hors droit d'enregistrement et frais de notaire. Maison proposée, avec un contrat de construction de maison individuelle, dans le cadre de la loi du 19/12/1990, au prix de 143 000 € (Hors branchements et raccordements, papiers peints, peintures, revêtement de sol dans les chambres, qui sont chiffrés dans les travaux qui restent à charge du client. Tarif modifiable sans préavis). Étiquette énergie : A. Différents modèles disponibles pour ce terrain. Assurances et garanties du constructeur comprises (RC professionnelle, décennale, dommage ouvrage).Agence Maisons Balency de Ormoy (91540)
- Téléphone :
- 09 67 70 15 81
- Adressse :
- 23 chemin de Tournenfils - 1er étage
91540 Ormoy, France
