Maison neuve à
Le Mée-sur-Seine
(77350) Référence :
PM2319251_3
Prix du projet : Maison avec Terrain
prix 315 000 €
- 5 pièces
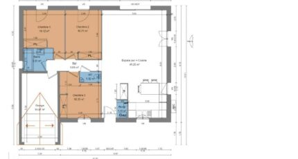
- 3 chambres
- Surface maison 82 m2
À construire : votre Plain-Pied de 82 m² sur terrain viabilisé au Mée-sur-Seine (77350) dès 315 000 €
Découvrez ce projet de maison traditionnelle de 3 chambres, à réaliser sur un beau terrain viabilisé de 577 m², idéalement situé au Mée-sur-Seine, à proximité immédiate de Melun. Ce secteur résidentiel calme et recherché bénéficie de toutes les commodités : écoles, commerces, et services accessibles en quelques minutes, tout comme le centre commercial Bois Sénart ou le parc de la Mairie. La gare du Mée-sur-Seine, sur la ligne R, permet de rejoindre Paris-Gare de Lyon en moins d'une heure.
Nous vous proposons ici un projet personnalisable selon vos envies et votre budget : modèle sur catalogue ou conception totalement faite sur mesure, avec des prestations soignées et conformes à la norme RE2020 garantissant un excellent confort énergétique (DPE A ou B).
Contactez les Maisons Balency d'Ormoy au 09 67 70 15 81 Donnez vie à votre projet de construction dans un cadre privilégié, aux portes de Melun et à moins d'une heure de Paris.
Annonce proposée par un Agent Commercial Partenaire.
Mentions légales
Terrain proposé par un partenaire foncier selon disponibilités et autorisation de publicité au prix de 170 000 €. Hors droit d'enregistrement et frais de notaire. Maison proposée, avec un contrat de construction de maison individuelle, dans le cadre de la loi du 19/12/1990, au prix de 145 000 € (Hors branchements et raccordements, papiers peints, peintures, revêtement de sol dans les chambres, qui sont chiffrés dans les travaux qui restent à charge du client. Tarif modifiable sans préavis). Étiquette énergie : A. Différents modèles disponibles pour ce terrain. Assurances et garanties du constructeur comprises (RC professionnelle, décennale, dommage ouvrage).Agence Maisons Balency de Ormoy (91540)
- Téléphone :
- 09 67 70 15 81
- Adressse :
- 23 chemin de Tournenfils - 1er étage
91540 Ormoy, France
