Maison neuve à
Le Mée-sur-Seine
(77350) Référence :
AM2321189_1
Prix du projet : Maison avec Terrain
prix 425 000 €
- 5 pièces
- 3 chambres
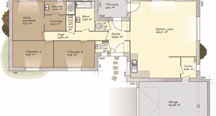
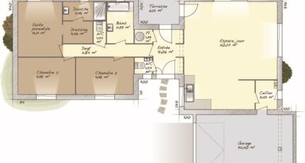
- Surface maison 120 m2
VENTE : maison F5 (120 m²) au Mée-sur-Seine
MAISON 5 PIÈCES NEUVE
Au pied de la station Le Mée (Paris à 35 min par le RER D), en vente au Mée-sur-Seine (77350), nous vous présentons cette maison de 5 pièces de plain-pied de 120 m² et de 500 m² de terrain.
Conçue de plain-pied, elle comporte trois chambres, une cuisine et deux salles de bains. Cette maison est neuve.
Des écoles primaires sont implantées à moins de 10 minutes à pied, tout comme une crèche. Niveau transports, il y a la station de RER Le Mée (ligne D) ainsi que la gare Le Mée-sur-Seine à quelques pas du bien. On trouve trois tennis, une bibliothèque, un bassin de natation, trois commerces, trois supermarchés, deux boulangeries, des épiceries et un bureau de poste dans les environs.
Son prix de vente est de 425 000 €.
N'hésitez pas à prendre contact avec notre agence (Aurelien MONTANIER : 06-24-66-88-34) pour toute information sur la maison. Maisons Balency Saint-Maur-des-Fossés est là pour vous accompagner dans tous vos projets immobiliers.
Annonce proposée par un Agent Commercial Partenaire.
Mentions légales
Terrain proposé par un partenaire foncier selon disponibilités et autorisation de publicité au prix de 162 000 €. Hors droit d'enregistrement et frais de notaire. Maison proposée, avec un contrat de construction de maison individuelle, dans le cadre de la loi du 19/12/1990, au prix de 263 000 € (Hors branchements et raccordements, papiers peints, peintures, revêtement de sol dans les chambres, qui sont chiffrés dans les travaux qui restent à charge du client. Tarif modifiable sans préavis). Étiquette énergie : A. Différents modèles disponibles pour ce terrain. Assurances et garanties du constructeur comprises (RC professionnelle, décennale, dommage ouvrage).Agence Maisons Balency de Saint-Maur-des-Fossés (94100)
- Téléphone :
- 01 87 36 85 37
- Adressse :
- 12 avenue de la république
94100 Saint-Maur-des-Fossés, France
