Maison neuve à
Le Neubourg (27110) Référence : MJ2370584_2

Prix du projet : Maison avec Terrain

prix 229 000 €

  • 5 pièces
  • 3 chambres
  • Surface maison 76 m2

Maison de 5 pièces (76 m²) en vente au Neubourg
QUARTIER RECHERCHÉ - MAISON 5 PIÈCES NEUVE
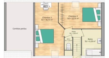
En vente à quelques kilomètres d'Évreux, nous sommes heureux de vous présenter cette maison de 5 pièces de 76 m² dans un quartier prisé du Neubourg (27110). Son intérieur dispose de trois chambres, d'une cuisine et d'une salle de bains.
Le terrain de la maison s'étend sur 702 m².
Cette maison compte 2 niveaux. Elle est neuve.
Cette maison est située dans un secteur convoité. Cinq établissements scolaires sont implantés à moins de 10 minutes à pied. L'autoroute A28 et la nationale N13 sont accessibles à moins de 19 km. Il y a une bibliothèque, un tennis, un bassin de natation, un supermarché, des commerces, des boulangeries, une supérette et quatre boucheries-charcuteries dans les environs. Enfin, le marché Place du Chateau anime le quartier chaque mercredi matin.
Elle est à vendre pour la somme de 229 000 €.
N'hésitez pas à prendre contact avec Michael JOURDON (06.43.05.84.44) pour toute information sur la maison. Donnez vie à vos projets immobiliers avec Maisons Balency Boos.

Annonce proposée par un Agent Commercial Partenaire.

Mentions légales

Terrain proposé par un partenaire foncier selon disponibilités et autorisation de publicité au prix de 72 900 €. Hors droit d'enregistrement et frais de notaire. Terrain + Maison proposés au prix de 156 100 € (Hors branchements et raccordements, papiers peints, peintures, revêtement de sol dans les chambres. Tarif modifiable sans préavis). Etiquette énergie : A. Différents modèles disponibles pour ce terrain. Assurances et garanties du constructeur (RC professionnelle, décennale, dommage ouvrage, garantie de remboursement de l'acompte, livraison à prix et délai convenu) : https://www.maisons-balency.fr/informations-legales/. HEXAOM Services est enregistré auprès de l'ORIAS en tant que Courtier en financement, Niveau 1, sous le numéro 14001345.

Contactez l'agence de Boos

02 35 80 66 66

    * Champs obligatoires

    Vos informations sont traitées par HEXAOM et transmises à un conseiller commercial qui vous contactera afin de répondre à votre demande. Les plans et images présentés sur notre site sont la propriété d’HEXAOM et ne peuvent pas être reproduits sans son accord. Pour retrouver notre politique de protection des données personnelles et exercer vos droits conformément à la « loi informatique et liberté » cliquez-ici.