Maison neuve à
Le Neubourg (27110) Référence : MJ2370584_3

Prix du projet : Maison avec Terrain

prix 239 900 €

  • 6 pièces
  • 4 chambres
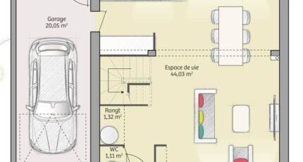
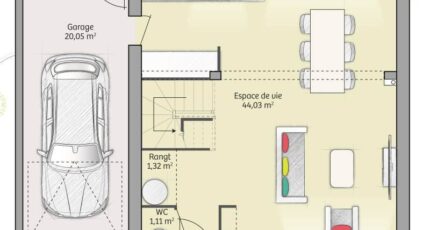
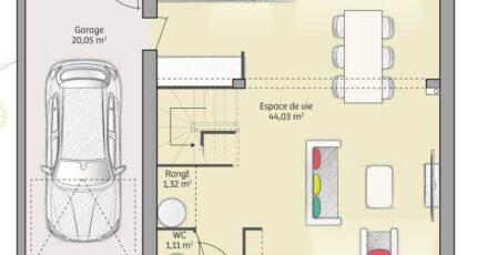
  • Surface maison 91 m2

Le Neubourg : maison de 6 pièces (91 m²) en vente
QUARTIER RECHERCHÉ - MAISON 6 PIÈCES NEUVE
En vente : à 23 km d'Évreux, ayez le coup de coeur pour cette maison de 6 pièces de 91 m² et de 702 m² de terrain située dans un secteur attractif du Neubourg (27110).
C'est une maison de 2 niveaux. Son intérieur offre quatre chambres, une cuisine et une salle de bains. Cette maison est neuve.
La maison est située dans un quartier prisé. Cinq établissements scolaires sont implantés à moins de 10 minutes à pied. L'autoroute A28 et la nationale N13 sont accessibles à moins de 19 km. On trouve une bibliothèque, un tennis, un bassin de natation, un supermarché, des commerces, des boulangeries, une supérette et quatre épiceries dans les environs. Le marché Place du Chateau anime le quartier chaque mercredi matin.
Elle est à vendre pour la somme de 239 900 €.
Contactez notre agence (JOURDON Michael : 06.43.05.84.44) pour tout renseignement sur la maison, sur les démarches à suivre ou sur les modalités de vente. Maisons Balency Boos est là pour vous accompagner à toutes les étapes de votre projet.

Annonce proposée par un Agent Commercial Partenaire.

Mentions légales

Terrain proposé par un partenaire foncier selon disponibilités et autorisation de publicité au prix de 72 900 €. Hors droit d'enregistrement et frais de notaire. Terrain + Maison proposés au prix de 167 000 € (Hors branchements et raccordements, papiers peints, peintures, revêtement de sol dans les chambres. Tarif modifiable sans préavis). Etiquette énergie : A. Différents modèles disponibles pour ce terrain. Assurances et garanties du constructeur (RC professionnelle, décennale, dommage ouvrage, garantie de remboursement de l'acompte, livraison à prix et délai convenu) : https://www.maisons-balency.fr/informations-legales/. HEXAOM Services est enregistré auprès de l'ORIAS en tant que Courtier en financement, Niveau 1, sous le numéro 14001345.

Contactez l'agence de Boos

02 35 80 66 66

    * Champs obligatoires

    Vos informations sont traitées par HEXAOM et transmises à un conseiller commercial qui vous contactera afin de répondre à votre demande. Les plans et images présentés sur notre site sont la propriété d’HEXAOM et ne peuvent pas être reproduits sans son accord. Pour retrouver notre politique de protection des données personnelles et exercer vos droits conformément à la « loi informatique et liberté » cliquez-ici.