Maison neuve à
Le Neubourg (27110) Référence : MJ2370584_6

Prix du projet : Maison avec Terrain

prix 249 000 €

  • 5 pièces
  • 3 chambres
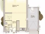
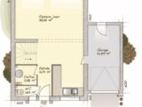
  • Surface maison 90 m2

VENTE : maison F5 (90 m²) au Neubourg
QUARTIER RECHERCHÉ - MAISON 5 PIÈCES NEUVE
À quelques kilomètres d'Évreux, notre agence Maisons Balency Boos est heureuse de vous proposer à vendre, située dans un quartier attractif du Neubourg (27110), cette maison de 5 pièces de 90 m² et de 702 m² de terrain. Son intérieur compte trois chambres, une cuisine et une salle de bains.
Cette maison possède 2 niveaux. Elle est neuve.
La maison se trouve dans un secteur convoité. Cinq établissements scolaires sont implantés à moins de 10 minutes à pied. L'autoroute A28 et la nationale N13 sont accessibles à moins de 19 km. Il y a une bibliothèque, un tennis, un bassin de natation, un supermarché, des commerces, des boulangeries, quatre épiceries et une poissonnerie à proximité de la maison. Le marché Place du Chateau anime les environs chaque mercredi matin.
Elle est à vendre pour la somme de 249 000 €.
Prenez contact avec notre constructeur (JOURDON Michael : 06.43.05.84.44) pour tout renseignement sur la maison ou sur les démarches à suivre. Faites de vos projets immobiliers une réalité avec Maisons Balency Boos.

Annonce proposée par un Agent Commercial Partenaire.

Mentions légales

Terrain proposé par un partenaire foncier selon disponibilités et autorisation de publicité au prix de 72 900 €. Hors droit d'enregistrement et frais de notaire. Terrain + Maison proposés au prix de 176 100 € (Hors branchements et raccordements, papiers peints, peintures, revêtement de sol dans les chambres. Tarif modifiable sans préavis). Etiquette énergie : A. Différents modèles disponibles pour ce terrain. Assurances et garanties du constructeur (RC professionnelle, décennale, dommage ouvrage, garantie de remboursement de l'acompte, livraison à prix et délai convenu) : https://www.maisons-balency.fr/informations-legales/. HEXAOM Services est enregistré auprès de l'ORIAS en tant que Courtier en financement, Niveau 1, sous le numéro 14001345.

Contactez l'agence de Boos

02 35 80 66 66

    * Champs obligatoires

    Vos informations sont traitées par HEXAOM et transmises à un conseiller commercial qui vous contactera afin de répondre à votre demande. Les plans et images présentés sur notre site sont la propriété d’HEXAOM et ne peuvent pas être reproduits sans son accord. Pour retrouver notre politique de protection des données personnelles et exercer vos droits conformément à la « loi informatique et liberté » cliquez-ici.