Maison neuve à
Le Neubourg (27110) Référence : MJ2370584_8

Prix du projet : Maison avec Terrain

prix 199 900 €

  • 5 pièces
  • 3 chambres
  • Surface maison 90 m2

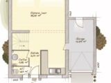
Maison de 5 pièces (90 m²) à vendre au Neubourg
QUARTIER RECHERCHÉ - MAISON 5 PIÈCES NEUVE
À 23 km d'Évreux, nous vous présentons en vente, construite dans un quartier recherché du Neubourg (27110), cette maison de 5 pièces de 90 m² et de 702 m² de terrain. Elle dispose de trois chambres, d'une cuisine et d'une salle de bains.
Cette maison compte 2 niveaux. Elle est neuve.
Cette maison est située dans un secteur convoité. Il y a cinq établissements scolaires à moins de 10 minutes à pied. L'autoroute A28 et la nationale N13 sont accessibles à moins de 19 km. On trouve une bibliothèque, un tennis, un bassin de natation, un supermarché, des commerces, des boulangeries, une supérette et quatre épiceries à quelques minutes à peine. Ne manquez pas le marché Place du Chateau tous les mercredis matin.
Son prix de vente est de 199 900 €.
Contactez Michael JOURDON (06.43.05.84.44) pour plus de renseignements sur la maison.

Annonce proposée par un Agent Commercial Partenaire.

Mentions légales

Terrain proposé par un partenaire foncier selon disponibilités et autorisation de publicité au prix de 72 900 €. Hors droit d'enregistrement et frais de notaire. Terrain + Maison proposés au prix de 127 000 € (Hors branchements et raccordements, papiers peints, peintures, revêtement de sol dans les chambres. Tarif modifiable sans préavis). Etiquette énergie : A. Différents modèles disponibles pour ce terrain. Assurances et garanties du constructeur (RC professionnelle, décennale, dommage ouvrage, garantie de remboursement de l'acompte, livraison à prix et délai convenu) : https://www.maisons-balency.fr/informations-legales/. HEXAOM Services est enregistré auprès de l'ORIAS en tant que Courtier en financement, Niveau 1, sous le numéro 14001345.

Contactez l'agence de Boos

02 35 80 66 66

    * Champs obligatoires

    Vos informations sont traitées par HEXAOM et transmises à un conseiller commercial qui vous contactera afin de répondre à votre demande. Les plans et images présentés sur notre site sont la propriété d’HEXAOM et ne peuvent pas être reproduits sans son accord. Pour retrouver notre politique de protection des données personnelles et exercer vos droits conformément à la « loi informatique et liberté » cliquez-ici.