Maison neuve à
Le Pouget (34230) Référence : HM2260044_1

Prix du projet : Maison avec Terrain

prix 449 000 €

  • 5 pièces
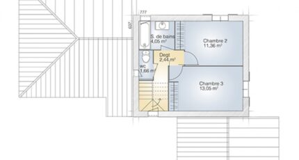
  • 3 chambres
  • Surface maison 105 m2

VENTE : maison F5 (105 m²) au Pouget
IDÉALEMENT SITUÉE - MAISON 5 PIÈCES NEUVE
À 30 km de la côte méditerranéenne et à deux pas de Montpellier, ayez le coup de coeur pour à vendre, idéalement située dans Le Pouget (34230), cette maison de 5 pièces de 105 m² et de 1 250 m² de terrain. Elle compte trois chambres, une cuisine et une salle de bains.
Cette maison comporte 2 niveaux. Elle est neuve.
La maison se situe dans un secteur convoité. On trouve l'École Élémentaire Lou Mathoulet et l'École Maternelle la Farandole à moins de 10 minutes à pied. Les autoroutes A75 et A750 sont accessibles à moins de 7 km. Il y a un tennis, une bibliothèque, trois boulangeries, deux commerces, une boucherie-charcuterie et un bureau de poste dans les environs.
Son prix de vente est de 355 000 €.
Contactez notre agence (Hervé MALDONADO : 06-72-60-44-42) pour toute information sur la maison. Maisons Balency Pézenas est là pour vous accompagner dans toutes vos démarches.

Mentions légales

Terrain proposé par un partenaire foncier selon disponibilités et autorisation de publicité au prix de 199 000 €. Hors droit d'enregistrement et frais de notaire. Maison proposée, avec un contrat de construction de maison individuelle, dans le cadre de la loi du 19/12/1990, au prix de 250 000 € (Hors branchements et raccordements, papiers peints, peintures, revêtement de sol dans les chambres, qui sont chiffrés dans les travaux qui restent à charge du client. Tarif modifiable sans préavis). Étiquette énergie : A. Différents modèles disponibles pour ce terrain. Assurances et garanties du constructeur comprises (RC professionnelle, décennale, dommage ouvrage).

Contactez l'agence de Pézenas

04 99 43 05 21

    * Champs obligatoires

    Vos informations sont traitées par HEXAOM et transmises à un conseiller commercial qui vous contactera afin de répondre à votre demande. Les plans et images présentés sur notre site sont la propriété d’HEXAOM et ne peuvent pas être reproduits sans son accord. Pour retrouver notre politique de protection des données personnelles et exercer vos droits conformément à la « loi informatique et liberté » cliquez-ici.