Maison neuve à
Le Trait (76580) Référence : RC2337464_1

Prix du projet : Maison avec Terrain

prix 284 295 €

  • 6 pièces
  • 4 chambres
  • Surface maison 98 m2

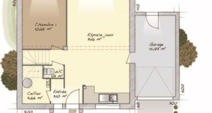
Maison F6 (98 m²) à construire au Trait
IDÉALEMENT SITUÉE - MAISON 6 PIÈCES NEUVE
À vendre à 35 km de la Manche et à deux pas de Rouen, nous sommes ravis de vous proposer, idéalement située dans Le Trait (76580), cette maison de 6 pièces de 98 m² et de 1 657 m² de terrain.
C'est une maison de 2 niveaux. Elle comporte quatre chambres, une cuisine et une salle de bains. Cette maison est neuve.
La maison se trouve dans un quartier recherché. On y trouve l'École Primaire Guy de Maupassant, le Collège Commandant Charcot et l'École Primaire Pierre et Marie Curie. Des autoroutes et la nationale N338 sont accessibles à moins de 19 km. Il y a un tennis, deux boulangeries, quatre commerces, un supermarché, une épicerie et une boucherie-charcuterie dans les environs.
Son prix de vente est de 284 295 €.
N'hésitez pas à prendre contact avec Célia RENIER (07-62-90-87-77) pour toute information sur la maison, sur les modalités de vente ou sur les démarches à suivre. Maisons Balency Boos est là pour vous accompagner à toutes les étapes de votre projet.

Annonce proposée par un Agent Commercial Partenaire.

Mentions légales

Terrain proposé par un partenaire foncier selon disponibilités et autorisation de publicité au prix de 84 000 €. Hors droit d'enregistrement et frais de notaire. Terrain + Maison proposés au prix de 200 295 € (Hors branchements et raccordements, papiers peints, peintures, revêtement de sol dans les chambres. Tarif modifiable sans préavis). Etiquette énergie : A. Différents modèles disponibles pour ce terrain. Assurances et garanties du constructeur (RC professionnelle, décennale, dommage ouvrage, garantie de remboursement de l'acompte, livraison à prix et délai convenu) : https://www.maisons-balency.fr/informations-legales/. HEXAOM Services est enregistré auprès de l'ORIAS en tant que Courtier en financement, Niveau 1, sous le numéro 14001345.

Contactez l'agence de Boos

02 35 80 66 66

    * Champs obligatoires

    Vos informations sont traitées par HEXAOM et transmises à un conseiller commercial qui vous contactera afin de répondre à votre demande. Les plans et images présentés sur notre site sont la propriété d’HEXAOM et ne peuvent pas être reproduits sans son accord. Pour retrouver notre politique de protection des données personnelles et exercer vos droits conformément à la « loi informatique et liberté » cliquez-ici.