Maison neuve à
Le Triadou
(34270) Référence :
CJ2288565_3
Prix du projet : Maison avec Terrain
prix 650 000 €
- 6 pièces
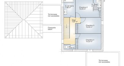
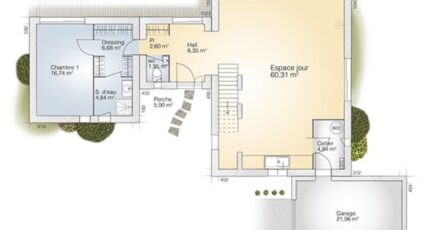
- 4 chambres
- Surface maison 170 m2
Le Triadou : maison de 6 pièces (170 m²) à vendre
EMPLACEMENT PRIVILÉGIÉ - MAISON 6 PIÈCES NEUVE
À vendre : située à 25 km de la côte méditerranéenne et à quelques kilomètres de Montpellier, bénéficiant d'un emplacement privilégié dans Le Triadou (34270), Maisons Balency Castries vous propose cette maison de 6 pièces de 170 m².
C'est une maison de 2 niveaux. Son intérieur offre quatre chambres, une cuisine et deux salles de bains. Cette maison est neuve.
Le terrain du bien s'étend sur 800 m².
Cette maison se trouve dans un secteur prisé. Les autoroutes A750 et A709 et les nationales N113 et N109 sont accessibles à moins de 15 km. Il y a un tennis à proximité.
Elle est proposée à l'achat pour 650 000 €.
N'hésitez pas à prendre contact avec Cédric (tél : 06-30-92-83-25) pour tout renseignement sur le bien ou sur les modalités de vente.
Mentions légales
Terrain proposé par un partenaire foncier selon disponibilités et autorisation de publicité au prix de 279 000 €. Hors droit d'enregistrement et frais de notaire. Maison proposée, avec un contrat de construction de maison individuelle, dans le cadre de la loi du 19/12/1990, au prix de 371 000 € (Hors branchements et raccordements, papiers peints, peintures, revêtement de sol dans les chambres, qui sont chiffrés dans les travaux qui restent à charge du client. Tarif modifiable sans préavis). Étiquette énergie : A. Différents modèles disponibles pour ce terrain. Assurances et garanties du constructeur comprises (RC professionnelle, décennale, dommage ouvrage).Agence Maisons Balency de Castries (34160)
- Téléphone :
- 04 99 62 92 10
- Adressse :
- 138, avenue de la Royale
34160 Castries, France
