Maison neuve à
Le Triadou
(34270) Référence :
CJ2407760_3
Prix du projet : Maison avec Terrain
prix 640 000 €
- 6 pièces
- 4 chambres
- Surface maison 170 m2
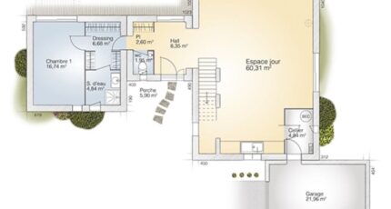
VENTE d'une maison de 6 pièces (170 m²) au Triadou
EMPLACEMENT PRIVILÉGIÉ - MAISON 6 PIÈCES NEUVE
En vente : située à 25 km de la côte méditerranéenne et à quelques kilomètres de Montpellier, Maisons Balency Castries vous présente cette maison de 6 pièces de 170 m² et de 600 m² de terrain bénéficiant d'un emplacement privilégié dans Le Triadou (34270). Son intérieur propose quatre chambres, une cuisine et deux salles de bains.
C'est une maison de 2 niveaux. Elle est neuve.
Cette maison se situe dans un quartier recherché. Les autoroutes A750 et A709 et les nationales N113 et N109 sont accessibles à moins de 15 km. On trouve un tennis à proximité.
Elle est proposée à l'achat pour 640 000 €.
Contactez Cédric (06-30-92-83-25) pour obtenir de plus amples informations sur la maison.
Mentions légales
Terrain proposé par un partenaire foncier selon disponibilités et autorisation de publicité au prix de 245 000 €. Hors droit d'enregistrement et frais de notaire. Terrain + Maison proposés au prix de 640 000 € (Hors branchements et raccordements, papiers peints, peintures, revêtement de sol dans les chambres. Tarif modifiable sans préavis). Etiquette énergie : A. Différents modèles disponibles pour ce terrain. Assurances et garanties du constructeur (RC professionnelle, décennale, dommage ouvrage, garantie de remboursement de l'acompte, livraison à prix et délai convenu) : https://www.maisons-balency.fr/informations-legales/. HEXAOM Services est enregistré auprès de l'ORIAS en tant que Courtier en financement, Niveau 1, sous le numéro 14001345.Agence Maisons Balency de Castries (34160)
- Téléphone :
- 04 99 62 92 10
- Adressse :
- 138, avenue de la Royale
34160 Castries, France
