Maison neuve à
Le Tronquay (27480) Référence : SEMA9021_11

Prix du projet : Maison avec Terrain

prix 370 000 €

  • 7 pièces
  • 5 chambres
  • Surface maison 170 m2

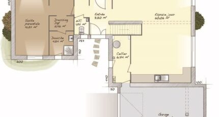
VENTE d'une maison F7 (170 m²) au Tronquay
PROCHE DE ROUEN - MAISON 7 PIÈCES NEUVE
À 27 km de Rouen, découvrez à vendre au Tronquay (27480), cette maison de 7 pièces de plain-pied de 170 m².
Elle compte cinq chambres, une cuisine et trois salles de bains. Cette maison est neuve.
Le terrain de la propriété s'étend sur 1 000 m².
L'École Élémentaire Nicolas Brémontier est implantée à moins de 10 minutes à pied.
Elle est à vendre pour la somme de 370 000 €.
N'hésitez pas à prendre contact avec notre agence (MASSON Sébastien : 06-23-38-14-17) pour plus d'informations sur la maison. Faites de vos projets immobiliers une réalité avec Maisons Balency Boos.

Annonce proposée par un Agent Commercial Partenaire.

Mentions légales

Terrain proposé par un partenaire foncier selon disponibilités et autorisation de publicité au prix de 40 000 €. Hors droit d'enregistrement et frais de notaire. Maison proposée, avec un contrat de construction de maison individuelle, dans le cadre de la loi du 19/12/1990, au prix de 330 000 € (Hors branchements et raccordements, papiers peints, peintures, revêtement de sol dans les chambres, qui sont chiffrés dans les travaux qui restent à charge du client. Tarif modifiable sans préavis). Étiquette énergie : A. Différents modèles disponibles pour ce terrain. Assurances et garanties du constructeur comprises (RC professionnelle, décennale, dommage ouvrage).

Contactez l'agence de Boos

02 35 80 66 66

    * Champs obligatoires

    Vos informations sont traitées par HEXAOM et transmises à un conseiller commercial qui vous contactera afin de répondre à votre demande. Les plans et images présentés sur notre site sont la propriété d’HEXAOM et ne peuvent pas être reproduits sans son accord. Pour retrouver notre politique de protection des données personnelles et exercer vos droits conformément à la « loi informatique et liberté » cliquez-ici.