Maison neuve à
Le Tronquay (27480) Référence : SEMA9021_12

Prix du projet : Maison avec Terrain

prix 145 000 €

  • 4 pièces
  • 2 chambres
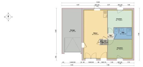
  • Surface maison 50 m2

Le Tronquay : maison de 4 pièces (50 m²) en vente
MAISON 4 PIÈCES NEUVE - PROCHE DE ROUEN
À quelques kilomètres de Rouen, à vendre au Tronquay (27480), Maisons Balency Boos vous propose cette maison de 4 pièces de plain-pied de 50 m².
Son intérieur propose deux chambres, une cuisine et une salle de bains. Cette maison est neuve.
Le terrain du bien s'étend sur 1 000 m².
L'École Élémentaire Nicolas Brémontier est implantée à moins de 10 minutes à pied.
Son prix de vente est de 145 000 €.
N'hésitez pas à prendre contact avec notre agence (Sébastien MASSON : 06-23-38-14-17) pour toute question sur cette maison. Maisons Balency Boos vous accompagne dans tous vos projets immobiliers et dans toutes vos démarches.

Annonce proposée par un Agent Commercial Partenaire.

Mentions légales

Terrain proposé par un partenaire foncier selon disponibilités et autorisation de publicité au prix de 40 000 €. Hors droit d'enregistrement et frais de notaire. Maison proposée, avec un contrat de construction de maison individuelle, dans le cadre de la loi du 19/12/1990, au prix de 105 000 € (Hors branchements et raccordements, papiers peints, peintures, revêtement de sol dans les chambres, qui sont chiffrés dans les travaux qui restent à charge du client. Tarif modifiable sans préavis). Étiquette énergie : A. Différents modèles disponibles pour ce terrain. Assurances et garanties du constructeur comprises (RC professionnelle, décennale, dommage ouvrage).

Contactez l'agence de Boos

02 35 80 66 66

    * Champs obligatoires

    Vos informations sont traitées par HEXAOM et transmises à un conseiller commercial qui vous contactera afin de répondre à votre demande. Les plans et images présentés sur notre site sont la propriété d’HEXAOM et ne peuvent pas être reproduits sans son accord. Pour retrouver notre politique de protection des données personnelles et exercer vos droits conformément à la « loi informatique et liberté » cliquez-ici.