Maison neuve à
Le Tronquay (27480) Référence : SEMA9021_3

Prix du projet : Maison avec Terrain

prix 190 000 €

  • 5 pièces
  • 3 chambres
  • Surface maison 76 m2

VENTE : maison F5 (76 m²) au Tronquay
PROCHE DE ROUEN - MAISON 5 PIÈCES NEUVE
En vente : située à deux pas de Rouen, au Tronquay (27480), nous vous présentons cette maison de 5 pièces de 76 m².
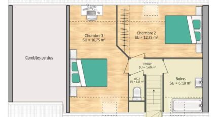
Cette maison compte 2 niveaux. Son intérieur dispose de trois chambres, d'une cuisine et d'une salle de bains. La maison est neuve.
Le terrain du bien est de 1 000 m².
L'École Élémentaire Nicolas Brémontier est implantée à moins de 10 minutes à pied.
Son prix de vente est de 190 000 €.
Contactez notre agence (Sébastien MASSON : 06-23-38-14-17) pour toute information sur cette maison et sur les modalités de vente.

Annonce proposée par un Agent Commercial Partenaire.

Mentions légales

Terrain proposé par un partenaire foncier selon disponibilités et autorisation de publicité au prix de 40 000 €. Hors droit d'enregistrement et frais de notaire. Terrain + Maison proposés au prix de 150 000 € (Hors branchements et raccordements, papiers peints, peintures, revêtement de sol dans les chambres. Tarif modifiable sans préavis). Etiquette énergie : A. Différents modèles disponibles pour ce terrain. Assurances et garanties du constructeur (RC professionnelle, décennale, dommage ouvrage, garantie de remboursement de l'acompte, livraison à prix et délai convenu) : https://www.maisons-balency.fr/informations-legales/. HEXAOM Services est enregistré auprès de l'ORIAS en tant que Courtier en financement, Niveau 1, sous le numéro 14001345.

Contactez l'agence de Boos

02 35 80 66 66

    * Champs obligatoires

    Vos informations sont traitées par HEXAOM et transmises à un conseiller commercial qui vous contactera afin de répondre à votre demande. Les plans et images présentés sur notre site sont la propriété d’HEXAOM et ne peuvent pas être reproduits sans son accord. Pour retrouver notre politique de protection des données personnelles et exercer vos droits conformément à la « loi informatique et liberté » cliquez-ici.