Maison neuve à
Le Tronquay (27480) Référence : SEMA9021_5

Prix du projet : Maison avec Terrain

prix 197 000 €

  • 6 pièces
  • 4 chambres
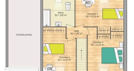
  • Surface maison 89 m2

Maison F6 (89 m²) en vente au Tronquay
MAISON 6 PIÈCES NEUVE - PROCHE DE ROUEN
En vente : située à deux pas de Rouen, notre agence Maisons Balency Boos est ravie de vous présenter cette maison de 6 pièces de 89 m² et de 1 000 m² de terrain au Tronquay (27480). Elle propose quatre chambres, une cuisine et une salle de bains.
Cette maison comporte 2 niveaux. Elle est neuve.
Il y a l'École Élémentaire Nicolas Brémontier à moins de 10 minutes à pied.
Elle est à vendre pour la somme de 197 000 €.
N'hésitez pas à prendre contact avec notre constructeur (MASSON Sébastien : 06-23-38-14-17) pour plus d'informations sur cette maison ou sur les modalités de vente. Maisons Balency Boos est là pour vous accompagner dans toutes vos démarches.

Annonce proposée par un Agent Commercial Partenaire.

Mentions légales

Terrain proposé par un partenaire foncier selon disponibilités et autorisation de publicité au prix de 40 000 €. Hors droit d'enregistrement et frais de notaire. Terrain + Maison proposés au prix de 157 000 € (Hors branchements et raccordements, papiers peints, peintures, revêtement de sol dans les chambres. Tarif modifiable sans préavis). Etiquette énergie : A. Différents modèles disponibles pour ce terrain. Assurances et garanties du constructeur (RC professionnelle, décennale, dommage ouvrage, garantie de remboursement de l'acompte, livraison à prix et délai convenu) : https://www.maisons-balency.fr/informations-legales/. HEXAOM Services est enregistré auprès de l'ORIAS en tant que Courtier en financement, Niveau 1, sous le numéro 14001345.

Contactez l'agence de Boos

02 35 80 66 66

    * Champs obligatoires

    Vos informations sont traitées par HEXAOM et transmises à un conseiller commercial qui vous contactera afin de répondre à votre demande. Les plans et images présentés sur notre site sont la propriété d’HEXAOM et ne peuvent pas être reproduits sans son accord. Pour retrouver notre politique de protection des données personnelles et exercer vos droits conformément à la « loi informatique et liberté » cliquez-ici.