Maison neuve à
Le Tronquay (27480) Référence : SEMA9021_7

Prix du projet : Maison avec Terrain

prix 234 000 €

  • 9 pièces
  • 5 chambres
  • Surface maison 124 m2

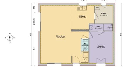
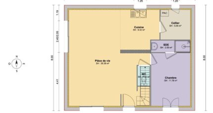
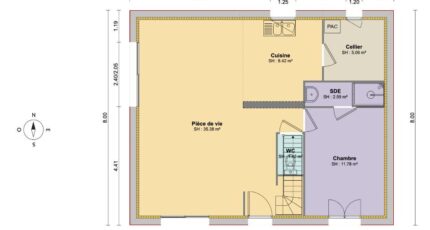
Maison de 9 pièces (124 m²) en vente au Tronquay
MAISON 9 PIÈCES NEUVE - PROCHE DE ROUEN
À 27 km de Rouen, laissez vous charmer par en vente au Tronquay (27480), cette maison de 9 pièces de 124 m². Son intérieur compte cinq chambres, une cuisine et trois salles de bains.
Le terrain de la maison s'étend sur 1 000 m².
Cette maison possède 2 niveaux. Elle est neuve.
L'École Élémentaire Nicolas Brémontier est implantée à moins de 10 minutes à pied.
Son prix de vente est de 234 000 €.
Contactez notre agence (MASSON Sébastien : 06-23-38-14-17) pour toute information sur cette maison ou sur les démarches à suivre.

Annonce proposée par un Agent Commercial Partenaire.

Mentions légales

Terrain proposé par un partenaire foncier selon disponibilités et autorisation de publicité au prix de 40 000 €. Hors droit d'enregistrement et frais de notaire. Maison proposée, avec un contrat de construction de maison individuelle, dans le cadre de la loi du 19/12/1990, au prix de 194 000 € (Hors branchements et raccordements, papiers peints, peintures, revêtement de sol dans les chambres, qui sont chiffrés dans les travaux qui restent à charge du client. Tarif modifiable sans préavis). Étiquette énergie : A. Différents modèles disponibles pour ce terrain. Assurances et garanties du constructeur comprises (RC professionnelle, décennale, dommage ouvrage).

Contactez l'agence de Boos

02 35 80 66 66

    * Champs obligatoires

    Vos informations sont traitées par HEXAOM et transmises à un conseiller commercial qui vous contactera afin de répondre à votre demande. Les plans et images présentés sur notre site sont la propriété d’HEXAOM et ne peuvent pas être reproduits sans son accord. Pour retrouver notre politique de protection des données personnelles et exercer vos droits conformément à la « loi informatique et liberté » cliquez-ici.