Maison neuve à
Le Tronquay (27480) Référence : SEMA9021_9

Prix du projet : Maison avec Terrain

prix 314 000 €

  • 5 pièces
  • 3 chambres
  • Surface maison 120 m2

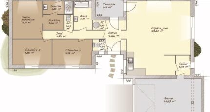
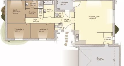
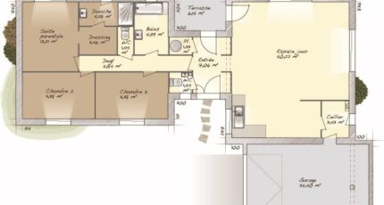
Maison de 5 pièces (120 m²) en vente au Tronquay
PROCHE DE ROUEN - MAISON 5 PIÈCES NEUVE
À vendre : située à deux pas de Rouen, venez découvrir cette maison de 5 pièces de plain-pied de 120 m² et de 1 000 m² de terrain au Tronquay (27480).
Conçue de plain-pied, elle offre trois chambres, une cuisine et deux salles de bains. La maison est neuve.
L'École Élémentaire Nicolas Brémontier est implantée à moins de 10 minutes à pied.
Son prix de vente est de 314 000 €.
Prenez contact avec notre agence (MASSON Sébastien : 06-23-38-14-17) pour obtenir de plus amples informations sur cette propriété ou sur les démarches à suivre. Maisons Balency Boos vous accompagne à toutes les étapes de l'achat et dans tous vos projets immobiliers.

Annonce proposée par un Agent Commercial Partenaire.

Mentions légales

Terrain proposé par un partenaire foncier selon disponibilités et autorisation de publicité au prix de 40 000 €. Hors droit d'enregistrement et frais de notaire. Maison proposée, avec un contrat de construction de maison individuelle, dans le cadre de la loi du 19/12/1990, au prix de 274 000 € (Hors branchements et raccordements, papiers peints, peintures, revêtement de sol dans les chambres, qui sont chiffrés dans les travaux qui restent à charge du client. Tarif modifiable sans préavis). Étiquette énergie : A. Différents modèles disponibles pour ce terrain. Assurances et garanties du constructeur comprises (RC professionnelle, décennale, dommage ouvrage).

Contactez l'agence de Boos

02 35 80 66 66

    * Champs obligatoires

    Vos informations sont traitées par HEXAOM et transmises à un conseiller commercial qui vous contactera afin de répondre à votre demande. Les plans et images présentés sur notre site sont la propriété d’HEXAOM et ne peuvent pas être reproduits sans son accord. Pour retrouver notre politique de protection des données personnelles et exercer vos droits conformément à la « loi informatique et liberté » cliquez-ici.