Maison neuve à
Aubevoye (27940) Référence : SEMA9052_12

Prix du projet : Maison avec Terrain

prix 172 000 €

  • 4 pièces
  • 2 chambres
  • Surface maison 50 m2

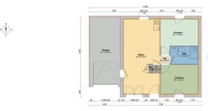
VENTE d'une maison de 4 pièces (49 m²) au Val d'Hazey
MAISON 4 PIÈCES NEUVE - PROCHE D'ÉVREUX
À vendre à deux pas d'Évreux, notre agence Maisons Balency Boos est ravie de vous proposer au Val d'Hazey (27940), cette maison de 4 pièces de plain-pied de 49 m² et de 1 000 m² de terrain.
Son intérieur propose deux chambres, une cuisine et une salle de bains. Cette maison est neuve.
Des établissements scolaires de tous niveaux (de la maternelle au lycée) sont implantés à moins de 10 minutes en voiture, tout comme cinq structures d'accueil pour les tout-petits à moins de 10 minutes à pied. Côté transports en commun, il y a les gares Gaillon-Aubevoye et Saint-Pierre-du-Vauvray à moins de 10 minutes en voiture. L'autoroute A13 et la nationale N154 sont accessibles à moins de 10 km. On trouve trois bibliothèques, des tennis, un bassin de natation, des commerces, des boulangeries, quatre supermarchés, des boucheries-charcuteries et une épicerie à quelques minutes à peine. Enfin, le marché Rue de Gaulle a lieu tous les mardis matin.
Elle est proposée à l'achat pour 172 000 €.
Prenez contact avec notre agence (Sébastien MASSON : 06-23-38-14-17) pour toute information sur cette maison ou sur les modalités de vente. Maisons Balency Boos vous accompagne à toutes les étapes de l'achat et dans toutes vos démarches.

Annonce proposée par un Agent Commercial Partenaire.

Mentions légales

Terrain proposé par un partenaire foncier selon disponibilités et autorisation de publicité au prix de 65 000 €. Hors droit d'enregistrement et frais de notaire. Terrain + Maison proposés au prix de 172 000 € (Hors branchements et raccordements, papiers peints, peintures, revêtement de sol dans les chambres. Tarif modifiable sans préavis). Etiquette énergie : A. Différents modèles disponibles pour ce terrain. Assurances et garanties du constructeur (RC professionnelle, décennale, dommage ouvrage, garantie de remboursement de l'acompte, livraison à prix et délai convenu) : https://www.maisons-balency.fr/informations-legales/. HEXAOM Services est enregistré auprès de l'ORIAS en tant que Courtier en financement, Niveau 1, sous le numéro 14001345.

Contactez l'agence de Boos

02 35 80 66 66

    * Champs obligatoires

    Vos informations sont traitées par HEXAOM et transmises à un conseiller commercial qui vous contactera afin de répondre à votre demande. Les plans et images présentés sur notre site sont la propriété d’HEXAOM et ne peuvent pas être reproduits sans son accord. Pour retrouver notre politique de protection des données personnelles et exercer vos droits conformément à la « loi informatique et liberté » cliquez-ici.