Maison neuve à
Aubevoye (27940) Référence : SEMA9052_7

Prix du projet : Maison avec Terrain

prix 259 000 €

  • 9 pièces
  • 5 chambres
  • Surface maison 124 m2

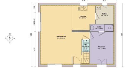
Maison de 9 pièces (124 m²) à vendre au Val d'Hazey
PROCHE D'ÉVREUX - MAISON 9 PIÈCES NEUVE
En vente : à deux pas d'Évreux, au Val d'Hazey (27940), découvrez cette maison de 9 pièces de 124 m² et de 1 000 m² de terrain.
C'est une maison de 2 niveaux. Elle propose cinq chambres, une cuisine et trois salles de bains. Cette maison est neuve.
Des établissements scolaires de tous niveaux sont implantés à moins de 10 minutes en voiture, tout comme cinq structures d'accueil pour les tout-petits à moins de 10 minutes à pied. Niveau transports, on trouve les gares Gaillon-Aubevoye et Saint-Pierre-du-Vauvray à moins de 10 minutes en voiture. L'autoroute A13 et la nationale N154 sont accessibles à moins de 10 km. Il y a trois bibliothèques, des tennis, un bassin de natation, des commerces, des boulangeries, quatre supermarchés, une épicerie et trois supérettes à proximité de la maison. Ne manquez pas le marché Rue de Gaulle chaque mardi matin.
Son prix de vente est de 259 000 €.
Contactez notre agence (Sébastien MASSON : 06-23-38-14-17) pour plus de renseignements sur la maison. Maisons Balency Boos vous accompagne à toutes les étapes de votre projet et dans toutes vos démarches.

Annonce proposée par un Agent Commercial Partenaire.

Mentions légales

Terrain proposé par un partenaire foncier selon disponibilités et autorisation de publicité au prix de 65 000 €. Hors droit d'enregistrement et frais de notaire. Terrain + Maison proposés au prix de 259 000 € (Hors branchements et raccordements, papiers peints, peintures, revêtement de sol dans les chambres. Tarif modifiable sans préavis). Etiquette énergie : A. Différents modèles disponibles pour ce terrain. Assurances et garanties du constructeur (RC professionnelle, décennale, dommage ouvrage, garantie de remboursement de l'acompte, livraison à prix et délai convenu) : https://www.maisons-balency.fr/informations-legales/. HEXAOM Services est enregistré auprès de l'ORIAS en tant que Courtier en financement, Niveau 1, sous le numéro 14001345.

Contactez l'agence de Boos

02 35 80 66 66

    * Champs obligatoires

    Vos informations sont traitées par HEXAOM et transmises à un conseiller commercial qui vous contactera afin de répondre à votre demande. Les plans et images présentés sur notre site sont la propriété d’HEXAOM et ne peuvent pas être reproduits sans son accord. Pour retrouver notre politique de protection des données personnelles et exercer vos droits conformément à la « loi informatique et liberté » cliquez-ici.