Maison neuve à
Le Vaudreuil (27100) Référence : KXA2334260_2

Prix du projet : Maison avec Terrain

prix 197 000 €

  • 4 pièces
  • 2 chambres
  • Surface maison 60 m2

VENTE : maison de 4 pièces (60 m²) au Vaudreuil
MAISON 4 PIÈCES NEUVE - PROCHE DE ROUEN
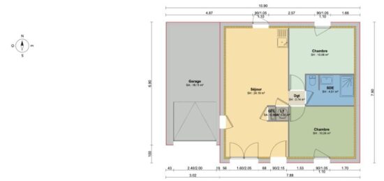
À vendre à quelques kilomètres de Rouen, laissez vous charmer par au Vaudreuil (27100), cette maison de 4 pièces de plain-pied de 60 m².
Elle est composée de deux chambres, d'une cuisine et d'une salle de bains. La maison est neuve.
Le terrain de la propriété s'étend sur 718 m².
On trouve quatre établissements scolaires à moins de 10 minutes à pied et, comme l'École Maternelle les Tilleuls, le Collège Michel de Montaigne ou l'École Primaire Privée Saint Henri. Niveau transports, il y a les gares Val-de-Reuil, Saint-Pierre-du-Vauvray et Pont-de-l'Arche à moins de 10 minutes en voiture. Les autoroutes A13 et A154 et la nationale N154 sont accessibles à moins de 9 km. On trouve trois tennis, une bibliothèque, des commerces, une boulangerie, une boucherie-charcuterie, une épicerie et un bureau de poste dans les environs.
Son prix de vente est de 197 000 €.
Prenez contact avec Kévin XAVIER ALVES (06-58-91-13-87) pour plus de renseignements sur cette maison. Maisons Balency Boos est là pour vous accompagner dans tous vos projets immobiliers.

Annonce proposée par un Agent Commercial Partenaire.

Mentions légales

Terrain proposé par un partenaire foncier selon disponibilités et autorisation de publicité au prix de 89 500 €. Hors droit d'enregistrement et frais de notaire. Terrain + Maison proposés au prix de 107 500 € (Hors branchements et raccordements, papiers peints, peintures, revêtement de sol dans les chambres. Tarif modifiable sans préavis). Etiquette énergie : A. Différents modèles disponibles pour ce terrain. Assurances et garanties du constructeur (RC professionnelle, décennale, dommage ouvrage, garantie de remboursement de l'acompte, livraison à prix et délai convenu) : https://www.maisons-balency.fr/informations-legales/. HEXAOM Services est enregistré auprès de l'ORIAS en tant que Courtier en financement, Niveau 1, sous le numéro 14001345.

Contactez l'agence de Boos

02 35 80 66 66

    * Champs obligatoires

    Vos informations sont traitées par HEXAOM et transmises à un conseiller commercial qui vous contactera afin de répondre à votre demande. Les plans et images présentés sur notre site sont la propriété d’HEXAOM et ne peuvent pas être reproduits sans son accord. Pour retrouver notre politique de protection des données personnelles et exercer vos droits conformément à la « loi informatique et liberté » cliquez-ici.