Maison neuve à
Le Vaudreuil (27100) Référence : KXA2334260_3

Prix du projet : Maison avec Terrain

prix 438 000 €

  • 8 pièces
  • 5 chambres
  • Surface maison 200 m2

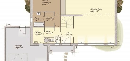
VENTE d'une maison F8 (200 m²) au Vaudreuil
PROCHE DE ROUEN - MAISON 8 PIÈCES NEUVE
À vendre : située à deux pas de Rouen, au Vaudreuil (27100), découvrez cette maison de 8 pièces de 200 m².
Cette maison compte 2 niveaux. Elle offre cinq chambres, une cuisine et deux salles de bains. La maison est neuve.
Le terrain du bien est de 718 m².
Il y a quatre établissements scolaires à moins de 10 minutes à pied et, comme l'École Maternelle les Tilleuls, le Collège Michel de Montaigne ou l'École Primaire Privée Saint Henri. Côté transports en commun, on trouve les gares Val-de-Reuil, Saint-Pierre-du-Vauvray et Pont-de-l'Arche à moins de 10 minutes en voiture. Les autoroutes A13 et A154 et la nationale N154 sont accessibles à moins de 9 km. Il y a trois tennis, une bibliothèque, des commerces, une boulangerie, une épicerie, un bureau de poste et une boucherie-charcuterie dans les environs.
Elle est proposée à l'achat pour 438 000 €.
Prenez contact avec notre agence (XAVIER ALVES Kévin : 06-58-91-13-87) pour tout renseignement sur le bien ou sur les démarches à suivre. Maisons Balency Boos vous accompagne à toutes les étapes de l'achat et dans tous vos projets immobiliers.

Annonce proposée par un Agent Commercial Partenaire.

Mentions légales

Terrain proposé par un partenaire foncier selon disponibilités et autorisation de publicité au prix de 89 500 €. Hors droit d'enregistrement et frais de notaire. Terrain + Maison proposés au prix de 348 500 € (Hors branchements et raccordements, papiers peints, peintures, revêtement de sol dans les chambres. Tarif modifiable sans préavis). Etiquette énergie : A. Différents modèles disponibles pour ce terrain. Assurances et garanties du constructeur (RC professionnelle, décennale, dommage ouvrage, garantie de remboursement de l'acompte, livraison à prix et délai convenu) : https://www.maisons-balency.fr/informations-legales/. HEXAOM Services est enregistré auprès de l'ORIAS en tant que Courtier en financement, Niveau 1, sous le numéro 14001345.

Contactez l'agence de Boos

02 35 80 66 66

    * Champs obligatoires

    Vos informations sont traitées par HEXAOM et transmises à un conseiller commercial qui vous contactera afin de répondre à votre demande. Les plans et images présentés sur notre site sont la propriété d’HEXAOM et ne peuvent pas être reproduits sans son accord. Pour retrouver notre politique de protection des données personnelles et exercer vos droits conformément à la « loi informatique et liberté » cliquez-ici.