Maison neuve à
Le Vaudreuil (27100) Référence : KB2343796_2

Prix du projet : Maison avec Terrain

prix 325 000 €

  • 5 pièces
  • 3 chambres
  • Surface maison 120 m2

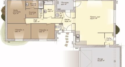
Maison de 5 pièces (120 m²) en vente au Vaudreuil
IDÉALEMENT SITUÉE - MAISON 5 PIÈCES NEUVE
À quelques kilomètres de Rouen, nous vous présentons cette maison de 5 pièces de plain-pied de 120 m² et de 718 m² de terrain idéalement située dans Le Vaudreuil (27100).
Conçue de plain-pied, elle inclut trois chambres, une cuisine et deux salles de bains. Cette maison est neuve.
Cette maison est située dans un secteur attractif. On trouve quatre établissements scolaires à moins de 10 minutes à pied et dont l'École Maternelle les Tilleuls, le Collège Michel de Montaigne et l'École Primaire Privée Saint Henri. Niveau transports, il y a trois gares (Val-de-Reuil, Saint-Pierre-du-Vauvray et Pont-de-l'Arche) à moins de 10 minutes en voiture. Les autoroutes A13 et A154 et la nationale N154 sont accessibles à moins de 9 km. On trouve trois tennis, une bibliothèque, des commerces, une boulangerie, une boucherie-charcuterie, un bureau de poste et une épicerie à proximité.
Elle est proposée à l'achat pour 325 000 €.
N'hésitez pas à prendre contact avec notre agence (Kamel BAZIZ : 07-80-36-63-82) pour tout renseignement sur la maison. Maisons Balency Boos est là pour vous accompagner dans toutes vos démarches.

Annonce proposée par un Agent Commercial Partenaire.

Mentions légales

Terrain proposé par un partenaire foncier selon disponibilités et autorisation de publicité au prix de 89 500 €. Hors droit d'enregistrement et frais de notaire. Maison proposée, avec un contrat de construction de maison individuelle, dans le cadre de la loi du 19/12/1990, au prix de 235 500 € (Hors branchements et raccordements, papiers peints, peintures, revêtement de sol dans les chambres, qui sont chiffrés dans les travaux qui restent à charge du client. Tarif modifiable sans préavis). Étiquette énergie : A. Différents modèles disponibles pour ce terrain. Assurances et garanties du constructeur comprises (RC professionnelle, décennale, dommage ouvrage).

Contactez l'agence de Boos

02 35 80 66 66

    * Champs obligatoires

    Vos informations sont traitées par HEXAOM et transmises à un conseiller commercial qui vous contactera afin de répondre à votre demande. Les plans et images présentés sur notre site sont la propriété d’HEXAOM et ne peuvent pas être reproduits sans son accord. Pour retrouver notre politique de protection des données personnelles et exercer vos droits conformément à la « loi informatique et liberté » cliquez-ici.