Maison neuve à
Le Vaudreuil (27100) Référence : KG2408941_8

Prix du projet : Maison avec Terrain

prix 342 000 €

  • 6 pièces
  • 4 chambres
  • Surface maison 117 m2

Le Vaudreuil : maison de 6 pièces (117 m²) en vente
PROCHE DE ROUEN - MAISON 6 PIÈCES NEUVE
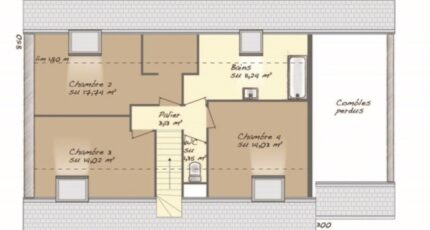
À vendre : venez découvrir cette maison à étage sous combles aménagés de 6 pièces de 117 m². Ce modèle propose quatre chambres, dont une grande suite parentale au RDC avec dressing et salle d'eau privative, 3 autres chambres avec une seconde salle de bain à l'étage, une cuisine ouverte sur un grand séjour de plus de 50m², lumineux avec ses baies coulissantes traversantes, deux WC indépendants, et un cellier en arrière cuisine donnant sur le garage.
Les finitions soignées de la maison (débords de toit PVC, carrelages design, portes intérieures au choix etc...) et les prestations de qualités sauront vous convaincre des avantages de faire batir sa maison neuve.
N'hésitez pas à prendre contact avec Karen GOHIER (06 71 52 61 13) pour plus d'informations sur cette maison de plain-pied ou sur les démarches à suivre. Maisons Balency Louviers vous accompagne dans tous vos projets immobiliers et dans toutes vos démarches.

Annonce proposée par un Agent Commercial Partenaire.

Mentions légales

Terrain proposé par un partenaire foncier selon disponibilités et autorisation de publicité au prix de 125 000 €. Hors droit d'enregistrement et frais de notaire. Terrain + Maison proposés au prix de 342 000 € (Hors branchements et raccordements, papiers peints, peintures, revêtement de sol dans les chambres. Tarif modifiable sans préavis). Etiquette énergie : A. Différents modèles disponibles pour ce terrain. Assurances et garanties du constructeur (RC professionnelle, décennale, dommage ouvrage, garantie de remboursement de l'acompte, livraison à prix et délai convenu) : https://www.maisons-balency.fr/informations-legales/. HEXAOM Services est enregistré auprès de l'ORIAS en tant que Courtier en financement, Niveau 1, sous le numéro 14001345.

Contactez l'agence de Louviers

02 32 51 43 53

    * Champs obligatoires

    Vos informations sont traitées par HEXAOM et transmises à un conseiller commercial qui vous contactera afin de répondre à votre demande. Les plans et images présentés sur notre site sont la propriété d’HEXAOM et ne peuvent pas être reproduits sans son accord. Pour retrouver notre politique de protection des données personnelles et exercer vos droits conformément à la « loi informatique et liberté » cliquez-ici.