Maison neuve à
Les Clayes-sous-Bois
(78340) Référence :
TD2327490_4
Prix du projet : Maison avec Terrain
prix 493 500 €
- 6 pièces
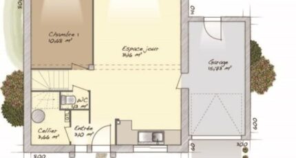
- 4 chambres
- Surface maison 98 m2
VENTE : maison F6 (98 m²) aux Clayes-sous-Bois
IDÉALEMENT SITUÉE - MAISON 6 PIÈCES NEUVE
En vente : à côté du Transilien N (gare de Villepreux-Les Clayes, 40 min de Paris), votre agence Maisons Balency Coignières est heureuse de vous présenter cette maison de 6 pièces de 98 m² idéalement située dans Les Clayes-sous-Bois (78340). Elle propose quatre chambres, une cuisine et une salle de bains.
Le terrain du bien s'étend sur 409 m².
Cette maison compte 2 niveaux. Elle est neuve.
Cette maison est située dans un quartier prisé. Il y a plusieurs écoles (maternelle, élémentaire et collège) à moins de 10 minutes à pied. Niveau transports, on trouve la gare Villepreux-Les Clayes dans un rayon de 1 km. On trouve une bibliothèque, un tennis, un bassin de natation, des boulangeries, des commerces, un supermarché, un bureau de poste et une poissonnerie à quelques minutes. Le marché Avenue Leclerc anime le quartier.
Son prix de vente est de 493 500 €.
Contactez notre agence (DUTEURTRE Thibault : 06-23-41-73-81) pour tout renseignement sur la propriété, sur les démarches à suivre ou sur les modalités de vente. Maisons Balency Coignières est là pour vous accompagner dans tous vos projets immobiliers.
Annonce proposée par un Agent Commercial Partenaire.
Mentions légales
Terrain proposé par un partenaire foncier selon disponibilités et autorisation de publicité au prix de 244 000 €. Hors droit d'enregistrement et frais de notaire. Maison proposée, avec un contrat de construction de maison individuelle, dans le cadre de la loi du 19/12/1990, au prix de 249 500 € (Hors branchements et raccordements, papiers peints, peintures, revêtement de sol dans les chambres, qui sont chiffrés dans les travaux qui restent à charge du client. Tarif modifiable sans préavis). Étiquette énergie : A. Différents modèles disponibles pour ce terrain. Assurances et garanties du constructeur comprises (RC professionnelle, décennale, dommage ouvrage).Agence Maisons Balency de Coignières (78310)
- Téléphone :
- 01 34 61 42 59
- Adressse :
- Domexpo Ouest
78310 Coignières, France
