Maison neuve à
Les Clayes-sous-Bois
(78340) Référence :
TD2327490_5
Prix du projet : Maison avec Terrain
prix 563 000 €
- 6 pièces
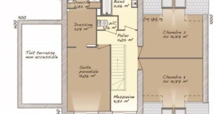
- 4 chambres
- Surface maison 139 m2
Maison de 6 pièces (139 m²) en vente aux Clayes-sous-Bois
IDÉALEMENT SITUÉE - MAISON 6 PIÈCES NEUVE
À côté du Transilien N (gare de Villepreux-Les Clayes, 40 min de Paris), Maisons Balency Coignières vous présente cette maison de 6 pièces de 139 m² à vendre idéalement située dans Les Clayes-sous-Bois (78340). Elle dispose de quatre chambres, d'une cuisine et de deux salles de bains.
Le terrain de la propriété s'étend sur 409 m².
Il s'agit d'une maison de 2 niveaux. Elle est neuve.
Cette maison se trouve dans un secteur recherché. Plusieurs établissements scolaires (maternelle, élémentaire et collège) sont implantés à moins de 10 minutes à pied. Niveau transports en commun, on trouve la gare Villepreux-Les Clayes à quelques pas de la maison. Il y a une bibliothèque, un tennis, un bassin de natation, des boulangeries, des commerces, un supermarché, des épiceries et un bureau de poste à quelques minutes à peine. Enfin, le marché Avenue Leclerc anime les environs.
Son prix de vente est de 563 000 €.
Prenez contact avec notre agence (DUTEURTRE Thibault : 06-23-41-73-81) pour tout renseignement sur la maison, sur les modalités de vente ou sur les démarches à suivre. Maisons Balency Coignières est là pour vous accompagner dans tous vos projets immobiliers.
Annonce proposée par un Agent Commercial Partenaire.
Mentions légales
Terrain proposé par un partenaire foncier selon disponibilités et autorisation de publicité au prix de 244 000 €. Hors droit d'enregistrement et frais de notaire. Maison proposée, avec un contrat de construction de maison individuelle, dans le cadre de la loi du 19/12/1990, au prix de 319 000 € (Hors branchements et raccordements, papiers peints, peintures, revêtement de sol dans les chambres, qui sont chiffrés dans les travaux qui restent à charge du client. Tarif modifiable sans préavis). Étiquette énergie : A. Différents modèles disponibles pour ce terrain. Assurances et garanties du constructeur comprises (RC professionnelle, décennale, dommage ouvrage).Agence Maisons Balency de Coignières (78310)
- Téléphone :
- 01 34 61 42 59
- Adressse :
- Domexpo Ouest
78310 Coignières, France
