Maison neuve à
Les Damps (27340) Référence : KXA2332439_3

Prix du projet : Maison avec Terrain

prix 395 500 €

  • 7 pièces
  • 4 chambres
  • Surface maison 160 m2

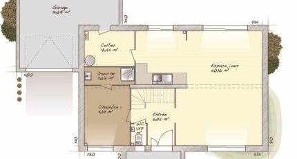
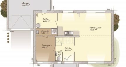
Les Damps : maison de 7 pièces (160 m²) à vendre
PROCHE DE ROUEN - MAISON 7 PIÈCES NEUVE
En vente : localisée à 18 km de Rouen, découvrez aux Damps (27340), cette maison de 7 pièces de 160 m². Elle offre quatre chambres, une cuisine et deux salles de bains.
Le terrain de la maison est de 610 m².
C'est une maison de 2 niveaux. Elle est neuve.
L'École Primaire Jules Verne est implantée à moins de 10 minutes à pied. Niveau transports, il y a six gares à moins de 10 minutes en voiture. Les autoroutes A13 et A154 sont accessibles à moins de 7 km. On trouve un supermarché à quelques minutes à peine.
Elle est proposée à l'achat pour 395 500 €.
Contactez notre agence (Kévin XAVIER ALVES : 06-58-91-13-87) pour toute information sur ce bien et sur les modalités de vente. Maisons Balency Boos vous accompagne à toutes les étapes de l'achat et dans toutes vos démarches.

Annonce proposée par un Agent Commercial Partenaire.

Mentions légales

Terrain proposé par un partenaire foncier selon disponibilités et autorisation de publicité au prix de 85 000 €. Hors droit d'enregistrement et frais de notaire. Terrain + Maison proposés au prix de 310 500 € (Hors branchements et raccordements, papiers peints, peintures, revêtement de sol dans les chambres. Tarif modifiable sans préavis). Etiquette énergie : A. Différents modèles disponibles pour ce terrain. Assurances et garanties du constructeur (RC professionnelle, décennale, dommage ouvrage, garantie de remboursement de l'acompte, livraison à prix et délai convenu) : https://www.maisons-balency.fr/informations-legales/. HEXAOM Services est enregistré auprès de l'ORIAS en tant que Courtier en financement, Niveau 1, sous le numéro 14001345.

Contactez l'agence de Boos

02 35 80 66 66

    * Champs obligatoires

    Vos informations sont traitées par HEXAOM et transmises à un conseiller commercial qui vous contactera afin de répondre à votre demande. Les plans et images présentés sur notre site sont la propriété d’HEXAOM et ne peuvent pas être reproduits sans son accord. Pour retrouver notre politique de protection des données personnelles et exercer vos droits conformément à la « loi informatique et liberté » cliquez-ici.