Maison neuve à
Les Grandes-Ventes (76950) Référence : SEMA9011_6

Prix du projet : Maison avec Terrain

prix 139 000 €

  • 4 pièces
  • 2 chambres
  • Surface maison 50 m2

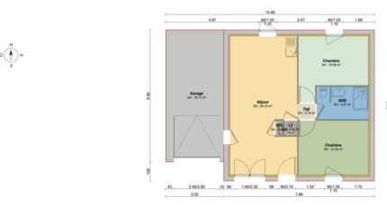
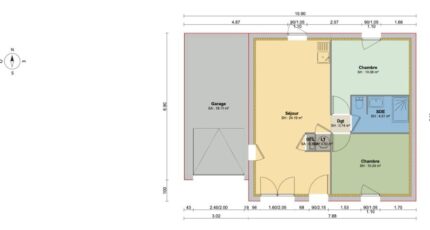
Les Grandes-Ventes : maison de 4 pièces (49 m²) en vente
MAISON 4 PIÈCES NEUVE - PROCHE DE DIEPPE
À 21 km de la Manche et à deux pas de Dieppe, nous vous présentons à vendre aux Grandes-Ventes (76950), cette maison de 4 pièces de plain-pied de 49 m². Elle inclut deux chambres, une cuisine et une salle de bains.
Le terrain du bien s'étend sur 450 m².
La maison est neuve.
Il y a l'École Primaire l'Hêtre Aux Savoirs à moins de 10 minutes à pied. Niveau transports, on trouve la gare Longueville-sur-Scie à moins de 10 minutes en voiture. Les autoroutes A28 et A29 et la nationale N27 sont accessibles à moins de 16 km. Il y a un tennis, trois commerces, deux boulangeries, un supermarché, deux boucheries-charcuteries et un bureau de poste à proximité.
Elle est à vendre pour la somme de 139 000 €.
N'hésitez pas à prendre contact avec notre agence (Sébastien MASSON : 06-23-38-14-17) pour plus d'informations sur cette maison ou sur les modalités de vente. Faites de vos projets immobiliers une réalité avec Maisons Balency Boos.

Annonce proposée par un Agent Commercial Partenaire.

Mentions légales

Terrain proposé par un partenaire foncier selon disponibilités et autorisation de publicité au prix de 34 000 €. Hors droit d'enregistrement et frais de notaire. Terrain + Maison proposés au prix de 105 000 € (Hors branchements et raccordements, papiers peints, peintures, revêtement de sol dans les chambres. Tarif modifiable sans préavis). Etiquette énergie : A. Différents modèles disponibles pour ce terrain. Assurances et garanties du constructeur (RC professionnelle, décennale, dommage ouvrage, garantie de remboursement de l'acompte, livraison à prix et délai convenu) : https://www.maisons-balency.fr/informations-legales/. HEXAOM Services est enregistré auprès de l'ORIAS en tant que Courtier en financement, Niveau 1, sous le numéro 14001345.

Contactez l'agence de Boos

02 35 80 66 66

    * Champs obligatoires

    Vos informations sont traitées par HEXAOM et transmises à un conseiller commercial qui vous contactera afin de répondre à votre demande. Les plans et images présentés sur notre site sont la propriété d’HEXAOM et ne peuvent pas être reproduits sans son accord. Pour retrouver notre politique de protection des données personnelles et exercer vos droits conformément à la « loi informatique et liberté » cliquez-ici.