Maison neuve à
Les Matelles
(34270) Référence :
JYB2374878_2
Prix du projet : Maison avec Terrain
prix 599 800 €
- 5 pièces
- 3 chambres
- Surface maison 120 m2
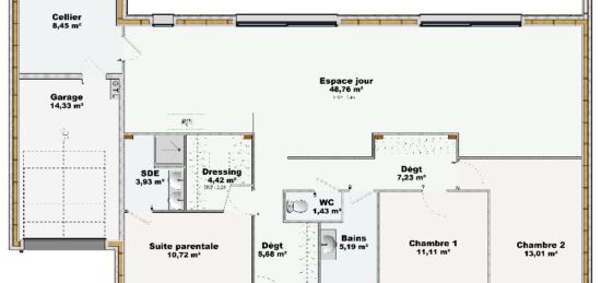
Maison de 5 pièces (120 m²) en vente aux Matelles
CENTRE-VILLE - MAISON 5 PIÈCES NEUVE
À 26 km de la côte méditerranéenne et à deux pas de Montpellier, notre agence Maisons Balency Castries est heureuse de vous présenter cette maison de 5 pièces de plain-pied de 120 m² et de 751 m² de terrain dans le centre des Matelles (34270). Elle offre trois chambres, une cuisine et deux salles de bains.
Cette maison est neuve.
Il y a des établissements scolaires maternelles et élémentaires dans le quartier et une crèche. Les autoroutes A750 et A709 et les nationales N109 et N113 sont accessibles à moins de 17 km. On trouve une bibliothèque, un tennis, deux boulangeries et un commerce à quelques minutes du bien.
Elle est à vendre pour la somme de 599 800 €.
N'hésitez pas à prendre contact avec Jean-Yves BARBAGLIA (06-71-64-52-11) pour tout renseignement sur la maison. Maisons Balency Castries est là pour vous accompagner à toutes les étapes de l'achat.
Mentions légales
Terrain proposé par un partenaire foncier selon disponibilités et autorisation de publicité au prix de 299 000 €. Hors droit d'enregistrement et frais de notaire. Terrain + Maison proposés au prix de 599 800 € (Hors branchements et raccordements, papiers peints, peintures, revêtement de sol dans les chambres. Tarif modifiable sans préavis). Etiquette énergie : A. Différents modèles disponibles pour ce terrain. Assurances et garanties du constructeur (RC professionnelle, décennale, dommage ouvrage, garantie de remboursement de l'acompte, livraison à prix et délai convenu) : https://www.maisons-balency.fr/informations-legales/. HEXAOM Services est enregistré auprès de l'ORIAS en tant que Courtier en financement, Niveau 1, sous le numéro 14001345.Agence Maisons Balency de Castries (34160)
- Téléphone :
- 04 99 62 92 10
- Adressse :
- 138, avenue de la Royale
34160 Castries, France
