Maison neuve à
Les Mureaux
(78130) Référence :
TD2421563_3
Prix du projet : Maison avec Terrain
prix 532 200 €
- 7 pièces
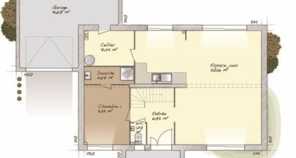
- 4 chambres
- Surface maison 160 m2
VENTE d'une maison de 7 pièces (160 m²) aux Mureaux
IDÉALEMENT SITUÉE - MAISON 7 PIÈCES NEUVE
En vente : au pied du Transilien J (30 min de Paris), nous vous présentons, idéalement située dans Les Mureaux (78130), cette maison de 7 pièces de 160 m². Elle offre quatre chambres, une cuisine et deux salles de bains.
Le terrain de cette maison est de 730 m².
Il s'agit d'une maison de 2 niveaux. Elle est neuve.
La maison est située dans un secteur prisé. Des établissements scolaires maternelles et élémentaires sont implantés à moins de 10 minutes à pied, tout comme une structure d'accueil pour les enfants en bas âge. Côté transports en commun, il y a la gare Les Mureaux dans les environs. On trouve une bibliothèque, trois tennis, des boulangeries, des commerces, trois supermarchés, des boucheries-charcuteries et un bureau de poste à quelques minutes du bien. Le marché Place Dunant anime le quartier.
Elle est à vendre pour la somme de 532 200 €.
Contactez Thibault DUTEURTRE (tél : 06-23-41-73-81) pour plus de renseignements sur la maison ou sur les démarches à suivre. Maisons Balency Coignières est là pour vous accompagner à toutes les étapes de votre projet.
Annonce proposée par un Agent Commercial Partenaire.
Mentions légales
Terrain proposé par un partenaire foncier selon disponibilités et autorisation de publicité au prix de 165 000 €. Hors droit d'enregistrement et frais de notaire. Terrain + Maison proposés au prix de 532 200 € (Hors branchements et raccordements, papiers peints, peintures, revêtement de sol dans les chambres. Tarif modifiable sans préavis). Etiquette énergie : A. Différents modèles disponibles pour ce terrain. Assurances et garanties du constructeur (RC professionnelle, décennale, dommage ouvrage, garantie de remboursement de l'acompte, livraison à prix et délai convenu) : https://www.maisons-balency.fr/informations-legales/. HEXAOM Services est enregistré auprès de l'ORIAS en tant que Courtier en financement, Niveau 1, sous le numéro 14001345.Agence Maisons Balency de Coignières (78310)
- Téléphone :
- 01 34 61 42 59
- Adressse :
- Domexpo Ouest
78310 Coignières, France
