Maison neuve à
Aubevoye (27940) Référence : RC2303908_2

Prix du projet : Maison avec Terrain

prix 243 892 €

  • 9 pièces
  • 5 chambres
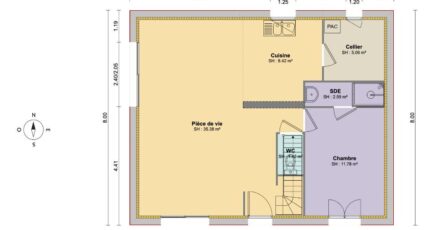
  • Surface maison 124 m2

A construire : maison T9 (124 m²) aux Trois Lacs
IDÉALEMENT SITUÉE - MAISON 9 PIÈCES NEUVE
En vente à deux pas de Rouen, votre agence Maisons Balency Boos est heureuse de vous présenter cette maison de 9 pièces de 124 m² et de 1 000 m² de terrain idéalement située dans Les Trois Lacs (27940).
Il s'agit d'une maison de 2 niveaux. Elle propose cinq chambres, une cuisine et trois salles de bains. La maison est neuve.
La maison est située dans un quartier recherché. On trouve l'École Primaire Venables à moins de 10 minutes à pied. Niveau transports en commun, il y a trois gares (Gaillon-Aubevoye, Saint-Pierre-du-Vauvray et Val-de-Reuil) à moins de 10 minutes en voiture. Les autoroutes A13 et A154 sont accessibles à moins de 10 km.
Son prix de vente est de 243 892 €.
N'hésitez pas à prendre contact avec notre agence (Célia RENIER : 07-62-90-87-77) pour plus d'informations sur la maison, sur les démarches à suivre ou sur les modalités de vente. Maisons Balency Boos vous accompagne à toutes les étapes de votre projet et dans tous vos projets immobiliers.

Annonce proposée par un Agent Commercial Partenaire.

Mentions légales

Terrain proposé par un partenaire foncier selon disponibilités et autorisation de publicité au prix de 58 000 €. Hors droit d'enregistrement et frais de notaire. Terrain + Maison proposés au prix de 185 892 € (Hors branchements et raccordements, papiers peints, peintures, revêtement de sol dans les chambres. Tarif modifiable sans préavis). Etiquette énergie : A. Différents modèles disponibles pour ce terrain. Assurances et garanties du constructeur (RC professionnelle, décennale, dommage ouvrage, garantie de remboursement de l'acompte, livraison à prix et délai convenu) : https://www.maisons-balency.fr/informations-legales/. HEXAOM Services est enregistré auprès de l'ORIAS en tant que Courtier en financement, Niveau 1, sous le numéro 14001345.

Contactez l'agence de Boos

02 35 80 66 66

    * Champs obligatoires

    Vos informations sont traitées par HEXAOM et transmises à un conseiller commercial qui vous contactera afin de répondre à votre demande. Les plans et images présentés sur notre site sont la propriété d’HEXAOM et ne peuvent pas être reproduits sans son accord. Pour retrouver notre politique de protection des données personnelles et exercer vos droits conformément à la « loi informatique et liberté » cliquez-ici.