Maison neuve à
L'Haÿ-les-Roses
(94240) Référence :
AM2284054_1
Prix du projet : Maison avec Terrain
prix 420 000 €
- 5 pièces
- 3 chambres
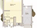
- Surface maison 90 m2
L'Haÿ-les-Roses : maison de 5 pièces (90 m²) en vente
MAISON 5 PIÈCES NEUVE
À côté de la station Bourg-la-Reine (Paris à 5 min par le RER B), en vente à L'Haÿ-les-Roses (94240), Maisons Balency Saint-Maur-des-Fossés vous propose cette maison de 5 pièces de 90 m². Elle inclut trois chambres, une cuisine et une salle de bains.
Le terrain de la maison est de 180 m².
C'est une maison de 2 niveaux. Elle est neuve.
Des établissements scolaires de tous types se trouvent à moins de 10 minutes à pied, tout comme trois crèches. Niveau transports en commun, il y a les lignes de RER B, C, D et A ainsi que 49 gares à moins de 10 minutes en voiture. On trouve une bibliothèque, des tennis, un bassin de natation, des commerces, des boulangeries, deux supermarchés, des boucheries-charcuteries et trois poissonneries à proximité.
Son prix de vente est de 420 000 €.
N'hésitez pas à prendre contact avec notre agence (MONTANIER Aurelien : 06-24-66-88-34) pour toute question sur la maison, sur les modalités de vente ou sur les démarches à suivre.
Annonce proposée par un Agent Commercial Partenaire.
Mentions légales
Terrain proposé par un partenaire foncier selon disponibilités et autorisation de publicité au prix de 210 000 €. Hors droit d'enregistrement et frais de notaire. Maison proposée, avec un contrat de construction de maison individuelle, dans le cadre de la loi du 19/12/1990, au prix de 210 000 € (Hors branchements et raccordements, papiers peints, peintures, revêtement de sol dans les chambres, qui sont chiffrés dans les travaux qui restent à charge du client. Tarif modifiable sans préavis). Étiquette énergie : A. Différents modèles disponibles pour ce terrain. Assurances et garanties du constructeur comprises (RC professionnelle, décennale, dommage ouvrage).Agence Maisons Balency de Saint-Maur-des-Fossés (94100)
- Téléphone :
- 01 87 36 85 37
- Adressse :
- 12 avenue de la république
94100 Saint-Maur-des-Fossés, France
