Maison neuve à
L'Haÿ-les-Roses
(94240) Référence :
CM2334191_1
Prix du projet : Maison avec Terrain
prix 672 000 €
- 5 pièces
- 3 chambres
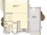
- Surface maison 90 m2
L'Haÿ-les-Roses : maison de 5 pièces (90 m²) en vente
MAISON 5 PIÈCES NEUVE
À vendre : au pied de la station Bourg-la-Reine du RER B (5 min de Paris), nous sommes ravis de vous présenter cette maison de 5 pièces de 90 m² à L'Haÿ-les-Roses (94240). Elle comporte trois chambres, une cuisine et une salle de bains.
Le terrain de cette maison s'étend sur 328 m².
C'est une maison de 2 niveaux. Elle est neuve.
Tous les types d'écoles (maternelle, élémentaire et secondaire) sont implantés à moins de 10 minutes à pied, tout comme trois crèches. Niveau transports, il y a le RER B, C, D et A ainsi que 49 gares à moins de 10 minutes en voiture. On trouve une bibliothèque, des tennis, un bassin de natation, des commerces, des boulangeries, deux supermarchés, des épiceries et des boucheries-charcuteries à quelques minutes.
Elle est à vendre pour la somme de 672 000 €.
Prenez contact avec Christophe MONTANIER (06-10-23-51-22) pour plus d'informations sur le bien, sur les modalités de vente ou sur les démarches à suivre.
Annonce proposée par un Agent Commercial Partenaire.
Mentions légales
Terrain proposé par un partenaire foncier selon disponibilités et autorisation de publicité au prix de 420 000 €. Hors droit d'enregistrement et frais de notaire. Terrain + Maison proposés au prix de 252 000 € (Hors branchements et raccordements, papiers peints, peintures, revêtement de sol dans les chambres. Tarif modifiable sans préavis). Etiquette énergie : A. Différents modèles disponibles pour ce terrain. Assurances et garanties du constructeur (RC professionnelle, décennale, dommage ouvrage, garantie de remboursement de l'acompte, livraison à prix et délai convenu) : https://www.maisons-balency.fr/informations-legales/. HEXAOM Services est enregistré auprès de l'ORIAS en tant que Courtier en financement, Niveau 1, sous le numéro 14001345.Agence Maisons Balency de Saint-Maur-des-Fossés (94100)
- Téléphone :
- 01 87 36 85 37
- Adressse :
- 12 avenue de la république
94100 Saint-Maur-des-Fossés, France
