Maison neuve à
Lillebonne (76170) Référence : RC2421885_5

Prix du projet : Maison avec Terrain

prix 348 163 €

  • 8 pièces
  • 5 chambres
  • Surface maison 145 m2

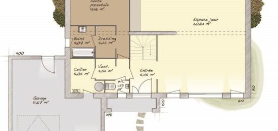
Lillebonne : maison F8 (145 m²) à construire
IDÉALEMENT SITUÉE - MAISON 8 PIÈCES NEUVE
À vendre : à 6 km de la Manche et à deux pas du Havre, nous vous proposons cette maison de 8 pièces de 145 m² et de 511 m² de terrain idéalement située dans Lillebonne (76170). Son intérieur offre cinq chambres, une cuisine et trois salles de bains.
Cette maison comporte 2 niveaux. Elle est neuve.
La maison est située dans un secteur recherché. Il y a des écoles de tous niveaux à moins de 10 minutes à pied. Niveau transports, on trouve la gare Bolbec-Nointot à moins de 10 minutes en voiture. Les autoroutes A131 et A29 et la nationale N182 sont accessibles à moins de 10 km. Il y a un tennis, des commerces, des boulangeries, quatre supermarchés, une poissonnerie et un bureau de poste à proximité.
Son prix de vente est de 348 163 €.
Prenez contact avec notre agence (Célia RENIER : 07-62-90-87-77) pour toute question sur la maison ou sur les démarches à suivre. Maisons Balency Boos est là pour vous accompagner dans tous vos projets immobiliers.

Annonce proposée par un Agent Commercial Partenaire.

Mentions légales

Terrain proposé par un partenaire foncier selon disponibilités et autorisation de publicité au prix de 61 000 €. Hors droit d'enregistrement et frais de notaire. Terrain + Maison proposés au prix de 348 163 € (Hors branchements et raccordements, papiers peints, peintures, revêtement de sol dans les chambres. Tarif modifiable sans préavis). Etiquette énergie : A. Différents modèles disponibles pour ce terrain. Assurances et garanties du constructeur (RC professionnelle, décennale, dommage ouvrage, garantie de remboursement de l'acompte, livraison à prix et délai convenu) : https://www.maisons-balency.fr/informations-legales/. HEXAOM Services est enregistré auprès de l'ORIAS en tant que Courtier en financement, Niveau 1, sous le numéro 14001345.

Contactez l'agence de Boos

02 35 80 66 66

    * Champs obligatoires

    Vos informations sont traitées par HEXAOM et transmises à un conseiller commercial qui vous contactera afin de répondre à votre demande. Les plans et images présentés sur notre site sont la propriété d’HEXAOM et ne peuvent pas être reproduits sans son accord. Pour retrouver notre politique de protection des données personnelles et exercer vos droits conformément à la « loi informatique et liberté » cliquez-ici.