Maison neuve à
Lilly (27480) Référence : KXA2388080_1

Prix du projet : Maison avec Terrain

prix 350 000 €

  • 8 pièces
  • 5 chambres
  • Surface maison 145 m2

Lilly : maison de 8 pièces (145 m²) en vente
MAISON 8 PIÈCES NEUVE
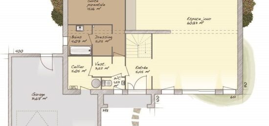
À vendre à Lilly (27480), nous vous présentons cette maison de 8 pièces de 145 m² et de 1 090 m² de terrain.
Cette maison compte 2 niveaux. Son intérieur est composé de cinq chambres, d'une cuisine et de trois salles de bains. Cette maison est neuve.
Plusieurs écoles (maternelle, élémentaire, primaire et collège) se trouvent à moins de 10 minutes en voiture. Il y a deux bibliothèques, un bassin de natation, deux tennis, des commerces, quatre boulangeries, trois boucheries-charcuteries, trois épiceries et un bureau de poste à quelques minutes du logement.
Son prix de vente est de 350 000 €.
Contactez notre agence (XAVIER ALVES Kévin : 06-58-91-13-87) pour plus d'informations sur ce bien ou sur les modalités de vente. Maisons Balency Boos vous accompagne dans tous vos projets immobiliers et à toutes les étapes de votre projet.

Annonce proposée par un Agent Commercial Partenaire.

Mentions légales

Terrain proposé par un partenaire foncier selon disponibilités et autorisation de publicité au prix de 66 000 €. Hors droit d'enregistrement et frais de notaire. Terrain + Maison proposés au prix de 284 000 € (Hors branchements et raccordements, papiers peints, peintures, revêtement de sol dans les chambres. Tarif modifiable sans préavis). Etiquette énergie : A. Différents modèles disponibles pour ce terrain. Assurances et garanties du constructeur (RC professionnelle, décennale, dommage ouvrage, garantie de remboursement de l'acompte, livraison à prix et délai convenu) : https://www.maisons-balency.fr/informations-legales/. HEXAOM Services est enregistré auprès de l'ORIAS en tant que Courtier en financement, Niveau 1, sous le numéro 14001345.

Contactez l'agence de Boos

02 35 80 66 66

    * Champs obligatoires

    Vos informations sont traitées par HEXAOM et transmises à un conseiller commercial qui vous contactera afin de répondre à votre demande. Les plans et images présentés sur notre site sont la propriété d’HEXAOM et ne peuvent pas être reproduits sans son accord. Pour retrouver notre politique de protection des données personnelles et exercer vos droits conformément à la « loi informatique et liberté » cliquez-ici.