Maison neuve à
Limeil-Brévannes
(94450) Référence :
AM2253773_2
Prix du projet : Maison avec Terrain
prix 460 000 €
- 6 pièces
- 4 chambres
- Surface maison 98 m2
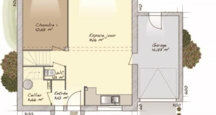
VENTE : maison F6 (98 m²) à Limeil-Brévannes
MAISON 6 PIÈCES NEUVE
À côté du RER A (station Boissy-Saint-Léger, 20 min de Paris), en vente à Limeil-Brévannes (94450), votre agence Maisons Balency Saint-Maur-des-Fossés est ravie de vous proposer cette maison de 6 pièces de 98 m² et de 269 m² de terrain. Elle inclut quatre chambres, une cuisine et une salle de bains.
Cette maison comporte 2 niveaux. Elle est neuve.
Plusieurs écoles (maternelle, élémentaire, primaire et collège) se trouvent à moins de 10 minutes à pied, tout comme une crèche. Niveau transports en commun, il y a les lignes A, D, C et E du RER ainsi que 22 gares à moins de 10 minutes en voiture. On trouve un tennis, des boulangeries, un supermarché, des commerces, un bureau de poste et quatre épiceries à proximité.
Elle est proposée à l'achat pour 460 000 €.
Contactez notre agence (MONTANIER Aurelien : 06-24-66-88-34) pour plus de renseignements sur la maison ou sur les démarches à suivre.
Annonce proposée par un Agent Commercial Partenaire.
Mentions légales
Terrain proposé par un partenaire foncier selon disponibilités et autorisation de publicité au prix de 240 000 €. Hors droit d'enregistrement et frais de notaire. Maison proposée, avec un contrat de construction de maison individuelle, dans le cadre de la loi du 19/12/1990, au prix de 220 000 € (Hors branchements et raccordements, papiers peints, peintures, revêtement de sol dans les chambres, qui sont chiffrés dans les travaux qui restent à charge du client. Tarif modifiable sans préavis). Étiquette énergie : A. Différents modèles disponibles pour ce terrain. Assurances et garanties du constructeur comprises (RC professionnelle, décennale, dommage ouvrage).Agence Maisons Balency de Saint-Maur-des-Fossés (94100)
- Téléphone :
- 01 87 36 85 37
- Adressse :
- 12 avenue de la république
94100 Saint-Maur-des-Fossés, France
