Maison neuve à
Limoges-Fourches
(77550) Référence :
PM2322688_1
Prix du projet : Maison avec Terrain
prix 375 000 €
- 6 pièces
- 4 chambres
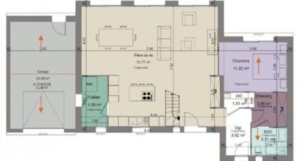
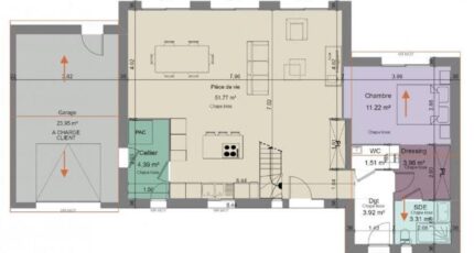
- Surface maison 120 m2
Limoges-Fourches, en Île de France (77550) : Votre Spacieuse Maison Familiale RE2020 sur un terrain VIABILISÉ, dès 375 000 € !
Offrez à votre famille l'espace et le confort dont elle rêve avec ce projet de construction d'une charmante demeure traditionnelle de 120 m², à bâtir sur un beau terrain viabilisé.
Pour 375 000 € (hors frais de notaire et frais annexes du terrain), imaginez des moments de partage inoubliables dans une maison pensée pour la vie de famille, tout en bénéficiant des dernières innovations en matière de performance énergétique grâce à la norme RE2020. Que vous soyez une famille nombreuse ayant besoin d'espace pour chacun, un jeune couple planifiant l'avenir, ou des personnes recherchant une maison confortable et évolutive, ce projet répondra à vos attentes.
Profitez d'un emplacement idéal, alliant la tranquillité d'un village à la proximité des commodités essentielles :
Pour vos courses et besoins quotidiens : Le Super U de Tournan-en-Brie se trouve à seulement 5 minutes en voiture.
Pour l'éducation et l'épanouissement de vos enfants : L'École primaire Les Prés de Gretz-Armainvilliers est à environ 8 minutes en voiture, et le Collège Georges Brassens de Tournan-en-Brie est accessible en 7 minutes.
Pour vos déplacements professionnels ou personnels : La gare de Tournan (lignes P du Transilien) est à 6 minutes en voiture, vous offrant des liaisons pratiques vers Paris et les environs.
Pour vos loisirs en famille : Le Parc des Sports de Tournan-en-Brie, avec ses nombreuses infrastructures, est à moins de 10 minutes.
Choisissez la qualité et la fiabilité de Maisons Balency, (Groupe Hexaôm, 1er constructeur de maisons individuelles en France), pour la réalisation de votre projet. Nous vous accompagnons de la conception à la construction de votre maison familiale RE2020, en vous garantissant un résultat à la hauteur de vos exigences.
Contactez dès maintenant notre agence des Maisons Balency d'Ormoy pour découvrir tous les détails de ce
Mentions légales
Terrain proposé par un partenaire foncier selon disponibilités et autorisation de publicité au prix de 125 000 €. Hors droit d'enregistrement et frais de notaire. Maison proposée, avec un contrat de construction de maison individuelle, dans le cadre de la loi du 19/12/1990, au prix de 250 000 € (Hors branchements et raccordements, papiers peints, peintures, revêtement de sol dans les chambres, qui sont chiffrés dans les travaux qui restent à charge du client. Tarif modifiable sans préavis). Étiquette énergie : A. Différents modèles disponibles pour ce terrain. Assurances et garanties du constructeur comprises (RC professionnelle, décennale, dommage ouvrage).Agence Maisons Balency de Ormoy (91540)
- Téléphone :
- 09 67 70 15 81
- Adressse :
- 23 chemin de Tournenfils - 1er étage
91540 Ormoy, France
