Maison neuve à
L'Isle-Adam
(95290) Référence :
CT2352758_3
Prix du projet : Maison avec Terrain
prix 814 000 €
- 9 pièces
- 4 chambres
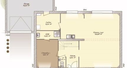
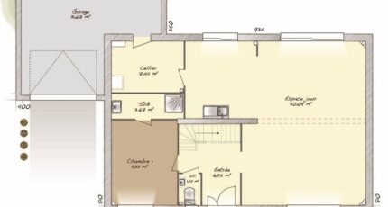
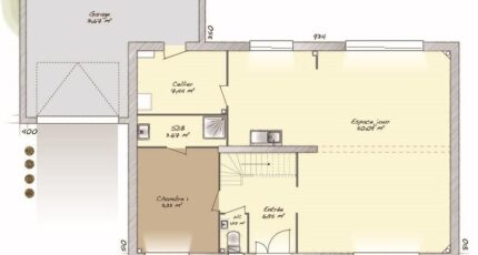
- Surface maison 186 m2
L'Isle-Adam : maison T9 (186 m²) en vente
IDÉALEMENT SITUÉE - MAISON 9 PIÈCES NEUVE
En vente : à deux pas de la gare de L'Isle-Adam-Parmain (Paris à 50 min par le Transilien H), laissez vous charmer par, idéalement située dans L'Isle-Adam (95290), cette maison de 9 pièces de 186 m² et de 700 m² de terrain. Son intérieur se divise en quatre chambres, une cuisine et deux salles de bains.
Cette maison compte 2 niveaux. Elle est neuve.
La maison est située dans un quartier prisé. L'École Élémentaire Parc de Cassan et l'École Maternelle Chantefleur se trouvent à moins de 10 minutes à pied. Côté transports en commun, il y a 23 gares à moins de 10 minutes en voiture. On trouve une bibliothèque, deux commerces, un supermarché, une boulangerie et trois boucheries-charcuteries à quelques minutes à peine.
Elle est proposée à l'achat pour 814 000 €.
N'hésitez pas à prendre contact avec Christophe TALAMONI (tél : 06-49-55-08-27) pour obtenir de plus amples renseignements sur la maison, sur les modalités de vente ou sur les démarches à suivre. Maisons Balency Baillet-en-France est là pour vous accompagner à toutes les étapes de l'achat.
Annonce proposée par un Agent Commercial Partenaire.
Mentions légales
Terrain proposé par un partenaire foncier selon disponibilités et autorisation de publicité au prix de 399 000 €. Hors droit d'enregistrement et frais de notaire. Maison proposée, avec un contrat de construction de maison individuelle, dans le cadre de la loi du 19/12/1990, au prix de 415 000 € (Hors branchements et raccordements, papiers peints, peintures, revêtement de sol dans les chambres, qui sont chiffrés dans les travaux qui restent à charge du client. Tarif modifiable sans préavis). Étiquette énergie : A. Différents modèles disponibles pour ce terrain. Assurances et garanties du constructeur comprises (RC professionnelle, décennale, dommage ouvrage).Agence Maisons Balency de Baillet-en-France (95560)
- Téléphone :
- 01 34 46 05 23
- Adressse :
- 81 rue de Paris
95560 Baillet-en-France, France
