Maison neuve à
Livry-sur-Seine
(77000) Référence :
AM2321203_2
Prix du projet : Maison avec Terrain
prix 383 000 €
- 6 pièces
- 4 chambres
- Surface maison 117 m2
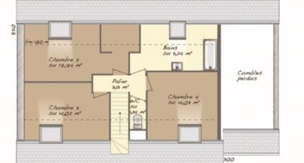
Maison de 6 pièces (117 m²) à vendre à Livry-sur-Seine
MAISON 6 PIÈCES NEUVE - PROCHE D'ÉVRY-COURCOURONNES
À quelques kilomètres d'Évry-Courcouronnes, Maisons Balency Saint-Maur-des-Fossés vous présente en vente à Livry-sur-Seine (77000), cette maison de 6 pièces de plain-pied de 117 m². Conçue de plain-pied, elle comporte quatre chambres, une cuisine et deux salles de bains.
Le terrain de la propriété est de 745 m².
Cette maison est neuve.
Des écoles maternelles et élémentaires sont implantées dans le quartier et une structure d'accueil pour la petite enfance. Niveau transports, il y a la gare Livry-sur-Seine à moins de 10 minutes à pied. On trouve un tennis, une boulangerie, une épicerie et une boucherie-charcuterie à proximité.
Elle est proposée à l'achat pour 383 000 €.
Contactez Aurelien MONTANIER (tél : 06-24-66-88-34) pour plus de renseignements sur la propriété. Maisons Balency Saint-Maur-des-Fossés vous accompagne dans tous vos projets immobiliers et à toutes les étapes de votre projet.
Annonce proposée par un Agent Commercial Partenaire.
Mentions légales
Terrain proposé par un partenaire foncier selon disponibilités et autorisation de publicité au prix de 169 000 €. Hors droit d'enregistrement et frais de notaire. Maison proposée, avec un contrat de construction de maison individuelle, dans le cadre de la loi du 19/12/1990, au prix de 214 000 € (Hors branchements et raccordements, papiers peints, peintures, revêtement de sol dans les chambres, qui sont chiffrés dans les travaux qui restent à charge du client. Tarif modifiable sans préavis). Étiquette énergie : A. Différents modèles disponibles pour ce terrain. Assurances et garanties du constructeur comprises (RC professionnelle, décennale, dommage ouvrage).Agence Maisons Balency de Saint-Maur-des-Fossés (94100)
- Téléphone :
- 01 87 36 85 37
- Adressse :
- 12 avenue de la république
94100 Saint-Maur-des-Fossés, France
