Maison neuve à
Longpont-sur-Orge
(91310) Référence :
RK2331808_1
Prix du projet : Maison avec Terrain
prix 348 765 €
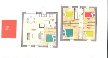
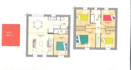
- 6 pièces
- 5 chambres
- Surface maison 102 m2
Longpont-sur-Orge : maison T6 (102 m²) en vente
IDÉALEMENT SITUÉE - MAISON 6 PIÈCES NEUVE
En vente : proche du RER C (station Saint-Michel-sur-Orge, 20 min de Paris), nous vous présentons cette maison de 6 pièces de 102 m² avec vue dégagée idéalement située dans Longpont-sur-Orge (91310).
Cette maison comporte 2 niveaux. Elle est composée de cinq chambres, d'une cuisine et de deux salles de bains. La maison est neuve.
Le terrain du bien s'étend sur 324 m².
Cette maison se trouve dans un quartier recherché. Il y a l'École Maternelle Lormoy et l'École Élémentaire Lormoy à moins de 10 minutes à pied et deux structures d'accueil pour la petite enfance. Niveau transports, on trouve trois lignes de RER (C, D et B) ainsi que 20 gares à moins de 10 minutes en voiture. On trouve un tennis, une boulangerie, quatre commerces, un supermarché et deux épiceries à proximité de la maison.
Son prix de vente est de 348 765 €.
Contactez Ramzi KRIFA (tél : 06-29-51-92-49) pour obtenir de plus amples informations sur la maison, sur les démarches à suivre ou sur les modalités de vente.
Mentions légales
Terrain proposé par un partenaire foncier selon disponibilités et autorisation de publicité au prix de 160 000 €. Hors droit d'enregistrement et frais de notaire. Maison proposée, avec un contrat de construction de maison individuelle, dans le cadre de la loi du 19/12/1990, au prix de 188 765 € (Hors branchements et raccordements, papiers peints, peintures, revêtement de sol dans les chambres, qui sont chiffrés dans les travaux qui restent à charge du client. Tarif modifiable sans préavis). Étiquette énergie : A. Différents modèles disponibles pour ce terrain. Assurances et garanties du constructeur comprises (RC professionnelle, décennale, dommage ouvrage).Agence Maisons Balency de La Ville-du-Bois (91620)
- Téléphone :
- 01 64 49 21 13
- Adressse :
- Domexpo Sud - RN20
91620 La Ville-du-Bois, France
