Maison neuve à
Longuesse
(95450) Référence :
AF2247140_1
Prix du projet : Maison avec Terrain
prix 315 000 €
- 6 pièces
- 4 chambres
- Surface maison 105 m2
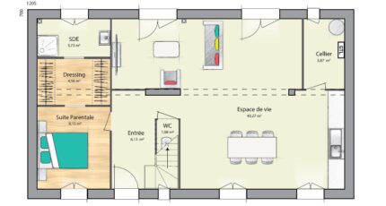
VENTE : maison F6 (105 m²) à Longuesse
MAISON 6 PIÈCES NEUVE - PROCHE D'ARGENTEUIL
À quelques minutes du Transilien J (gare d'Us, 45 min de Paris), nous vous proposons cette maison de 6 pièces de 105 m² en vente à Longuesse (95450).
Cette maison comporte 2 niveaux. Son intérieur comporte quatre chambres, une cuisine et deux salles de bains. Cette maison est neuve.
Le terrain de la propriété est de 330 m².
Une école primaire est implantée dans le quartier. Côté transports en commun, il y a la ligne de RER A (Cergy Le Haut) ainsi que 14 gares à moins de 10 minutes en voiture. On trouve une bibliothèque et un tennis dans les environs.
Elle est à vendre pour la somme de 320 000 €.
Prenez contact avec notre agence (Antoine FLIPPE : 07-82-59-37-75) pour tout renseignement sur la maison, sur les démarches à suivre ou sur les modalités de vente. Maisons Balency Pierrelaye est là pour vous accompagner dans tous vos projets immobiliers.
Annonce proposée par un Agent Commercial Partenaire.
Mentions légales
Terrain proposé par un partenaire foncier selon disponibilités et autorisation de publicité au prix de 128 000 €. Hors droit d'enregistrement et frais de notaire. Maison proposée, avec un contrat de construction de maison individuelle, dans le cadre de la loi du 19/12/1990, au prix de 187 000 € (Hors branchements et raccordements, papiers peints, peintures, revêtement de sol dans les chambres, qui sont chiffrés dans les travaux qui restent à charge du client. Tarif modifiable sans préavis). Étiquette énergie : A. Différents modèles disponibles pour ce terrain. Assurances et garanties du constructeur comprises (RC professionnelle, décennale, dommage ouvrage).Agence Maisons Balency de Baillet-en-France (95560)
- Téléphone :
- 01 34 46 05 23
- Adressse :
- 81 rue de Paris
95560 Baillet-en-France, France
